Проекты домов Оформить
ипотеку
Стройматериалы Участки Строительство
Выберите свой регион строительства
Крымский федеральный округ
Крым
Close mobile menu

Характеристики дома:

Площадь дома

334 m2

Кол-во жилых комнат

5
Проект с подрядом

Хотите изменить планировку?

Отправьте запрос архитектору и обсудите с ним ваши идеи по перепланировке.

О проекте

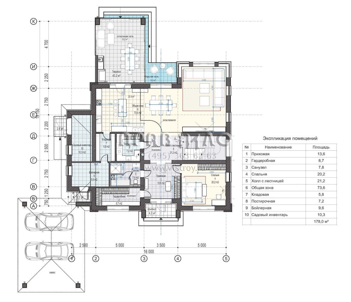
S-324. Это проект двухэтажного статусного дома со вторым светом и четырьмя спальнями. Серьёзное строение для большой семьи, которая ценит стиль и комфорт.

Проектировщики предусмотрели отдельное место для двух автомобилей под навесом. Оставляем машину и проходим в дом. Центральной зоной первого этажа несомненно является помещение кухни-гостиной-столовой. Это 73 «квадрата» открытого пространства, наполненного всем необходимым для совместного семейного времяпрепровождения. От приёма пищи до просмотра фильма на большом экране – в этой гостиной точно можно делать всё. Ну а если и этого мало, то выходим на остекленную террасу, которая добавляет еще больше пространства гостиной и является её естественным продолжением.

К кухне, кстати, прилегает удобная кладовая для хранения всяческой утвари, а рядом с холлом есть еще два функциональных помещения: постирочная (больше никаких «сушилок» в спальне) и гардеробная. Ну а завершает композицию первого этажа гостевая спальня и полноценная ванная комната.

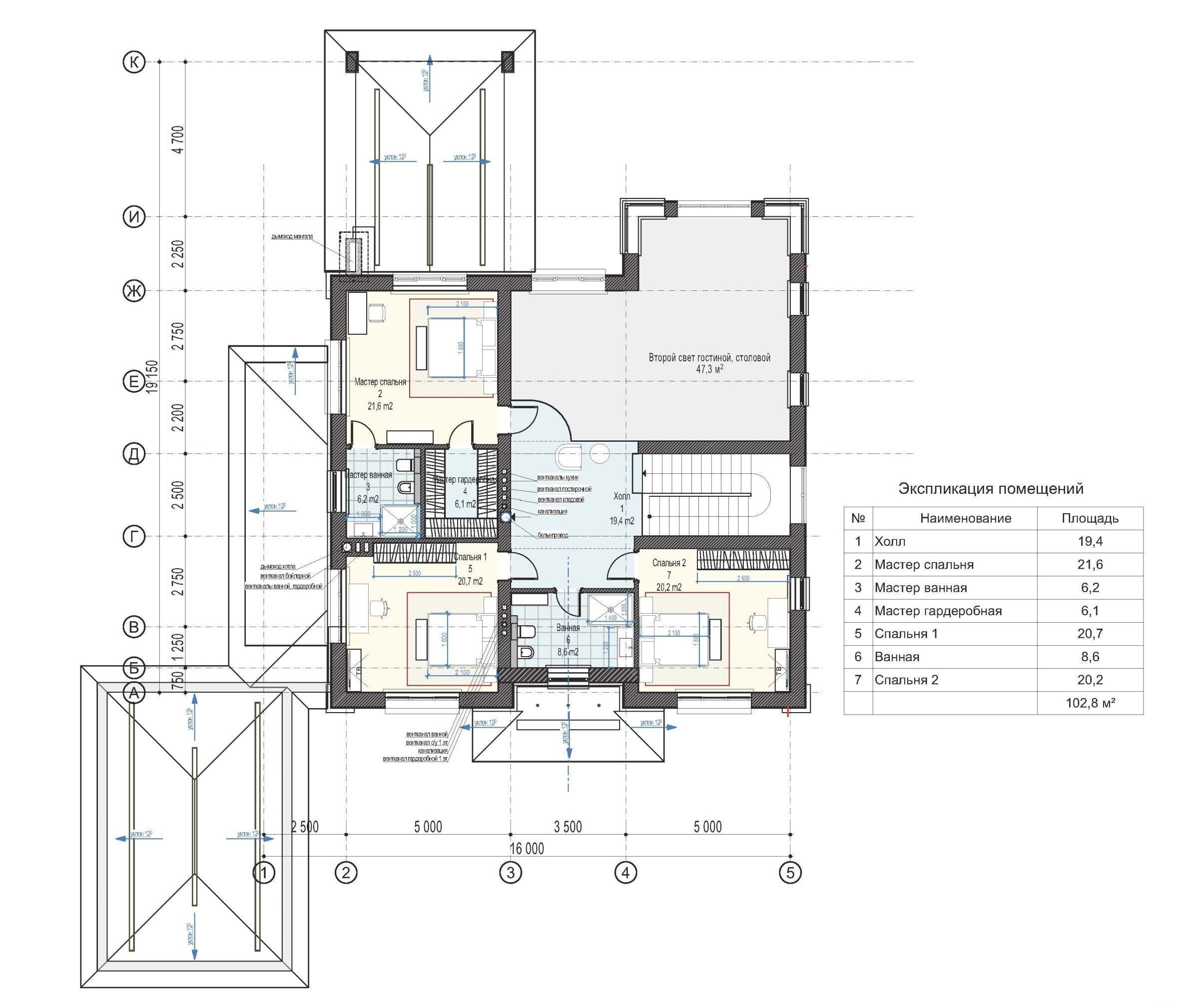
Второй этаж отведен под зону ночного отдыха проживающих. Для родителей – мастер-спальня с собственными ванной и гардеробной. Для детей – две спальни, каждая по 20 метров. И между этими спальнями спроектирована общая ванная комната.

Модификации проекта

Аккредитованы в ведущих банках

Корзина
Ваша корзина пуста
Выберите в каталоге интересующий товар и нажмите кнопку "В корзину"
Отложенные товары
Отложенных товаров нет
Выберите в каталоге интересующий товар и нажмите кнопку "В избранное"
Заказать звонок