Проекты домов Оформить
ипотеку
Стройматериалы Участки Строительство
Выберите свой регион строительства
Крымский федеральный округ
Крым
Close mobile menu

Характеристики дома:

Площадь дома

275,4 m2

Кол-во жилых комнат

6+
Проект с подрядом

Хотите изменить планировку?

Отправьте запрос архитектору и обсудите с ним ваши идеи по перепланировке.

О проекте

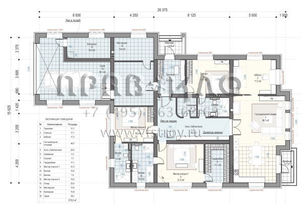
S-275. Вашему вниманию – большой одноэтажный дом с гаражом на один автомобиль и тремя спальнями. Сложно представить, чего в этом доме нет: обилие жилых помещений, общие и приватные зоны, места хранения… Но давайте обо всём по порядку.

Попасть в дом можно как через крыльцо, так и через гараж. Причём гаражный блок содержит не только само машиноместо, но и два помещения суммарной площадью 30 метров – для хранения вещей или для обустройства мастерской.

В самом доме есть центральный холл с серверной и полноценной ванной комнатой. А далее от холла в разные стороны расходятся различные комнаты. Главная общая комната – это большая совмещенная кухня-гостиная, где можно и еду приготовить, и там же её попробовать, а потом еще и сесть смотреть любимый сериал. За раздвижными дверями рядом с гостиной спрятался кабинет для любителей поработать из дома.

В доме три спальни: одна при входе и две мастер-спальни в противоположном конце строения. В одной мастер-спальне собственная ванная комната, а во второй – и ванная, и большая 11-метровая гардеробная.

В доме есть действительно всё. Он будет и функциональным, и просторным, и уютным. А реализацией проекта займёмся мы – звоните!

Аккредитованы в ведущих банках

Корзина
Ваша корзина пуста
Выберите в каталоге интересующий товар и нажмите кнопку "В корзину"
Отложенные товары
Отложенных товаров нет
Выберите в каталоге интересующий товар и нажмите кнопку "В избранное"
Заказать звонок