info@vfstroy.ru
Москва, 1-й Кожевнический переулок, дом 6, строение 1, этаж 3
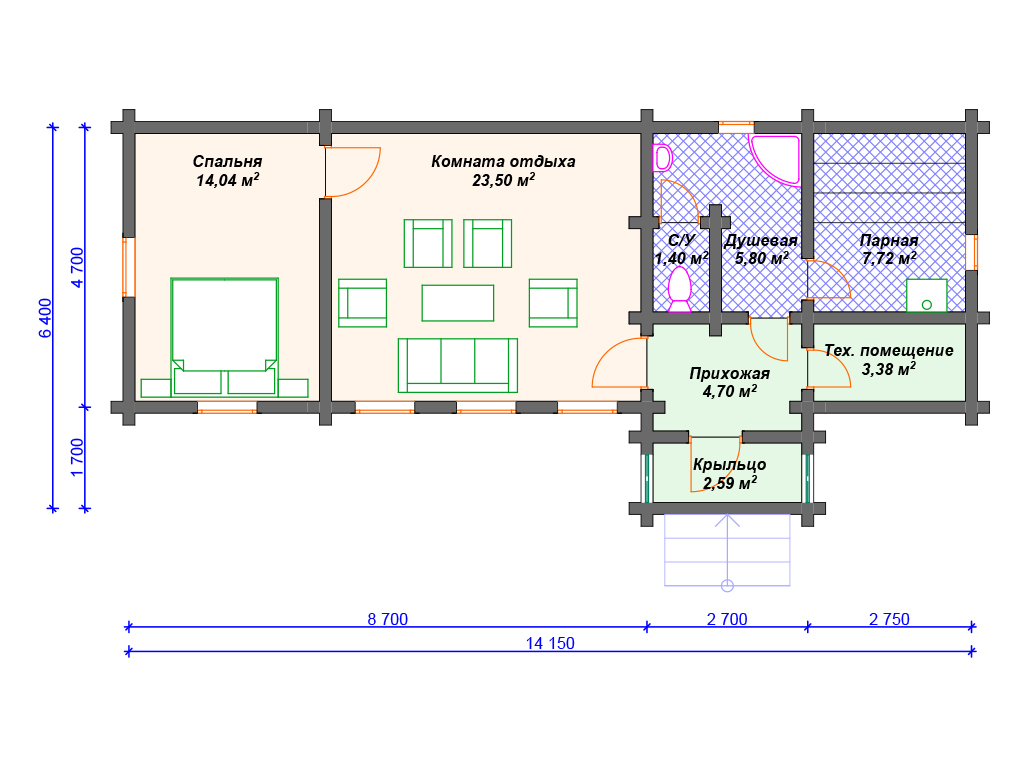
Проект деревянной бани для узкого участка SB4-63 (Б-040)
Характеристики дома:
Площадь дома
63 m2
Кол-во жилых комнат
2
Стоимость проекта АР+КР
31,800 ₽
О проекте
Характеристики проекта SB4-63 (Б-040)
| Классификация архитектора | Б-040 |
| Общая площадь | 63 м2 |
| Количество этажей | одноэтажный |
| Возможный материал кровли | металлочерепица, гибкая черепица, керамическая черепица, композитная черепица, цементно-песчаная черепица, фальцевая кровля |
| Количество жилых комнат | 2 |
| Тип перекрытий | по деревянным балкам |
| Материал стен | оцилиндрованное бревно, профилированный брус, клееный брус |