info@vfstroy.ru
Москва, 1-й Кожевнический переулок, дом 6, строение 1, этаж 3
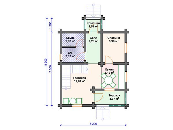
Проект деревянного дома из бревна 6 на 7 м с сауной S4-69 (ДО-041)
Характеристики дома:
Площадь дома
69 m2
Кол-во жилых комнат
3
Стоимость проекта АР+КР
35,000 ₽
О проекте
Характеристики проекта S4-69 (ДО-041)
| Классификация архитектора | ДО-041 |
| Общая площадь | 69 м2 |
| Количество этажей | двухэтажный |
| Гараж | без гаража |
| Возможный материал кровли | металлочерепица, гибкая черепица, керамическая черепица, композитная черепица, цементно-песчаная черепица, фальцевая кровля |
| Количество жилых комнат | 3 |
| Тип перекрытий | по деревянным балкам |
| Материал стен | оцилиндрованное бревно, профилированный брус, клееный брус |