info@vfstroy.ru
Москва, 1-й Кожевнический переулок, дом 6, строение 1, этаж 3
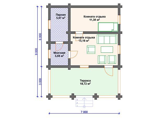
Проект деревянной бани SB4-55 (Б-031)
Характеристики дома:
Площадь дома
55 m2
Кол-во жилых комнат
2
Стоимость проекта АР+КР
30,700 ₽
О проекте
Характеристики проекта SB4-55 (Б-031)
| Классификация архитектора | Б-031 |
| Общая площадь | 55 м2 |
| Количество этажей | одноэтажный |
| Возможный материал кровли | металлочерепица, гибкая черепица, керамическая черепица, композитная черепица, цементно-песчаная черепица, фальцевая кровля |
| Количество жилых комнат | 2 |
| Тип перекрытий | по деревянным балкам |
| Материал стен | оцилиндрованное бревно, профилированный брус, клееный брус |