Проекты домов Оформить
ипотеку
Стройматериалы Участки Строительство
Выберите свой регион строительства
Крымский федеральный округ
Крым
Close mobile menu

Характеристики дома:

Площадь дома

703 m2

Кол-во жилых комнат

6+
Стоимость проекта АР+КР
103,870 ₽

Хотите изменить планировку?

Отправьте запрос архитектору и обсудите с ним ваши идеи по перепланировке.

О проекте

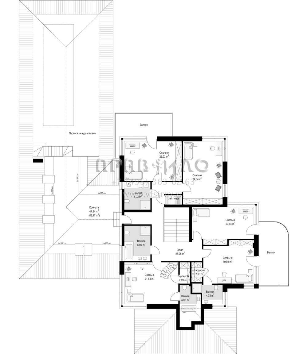
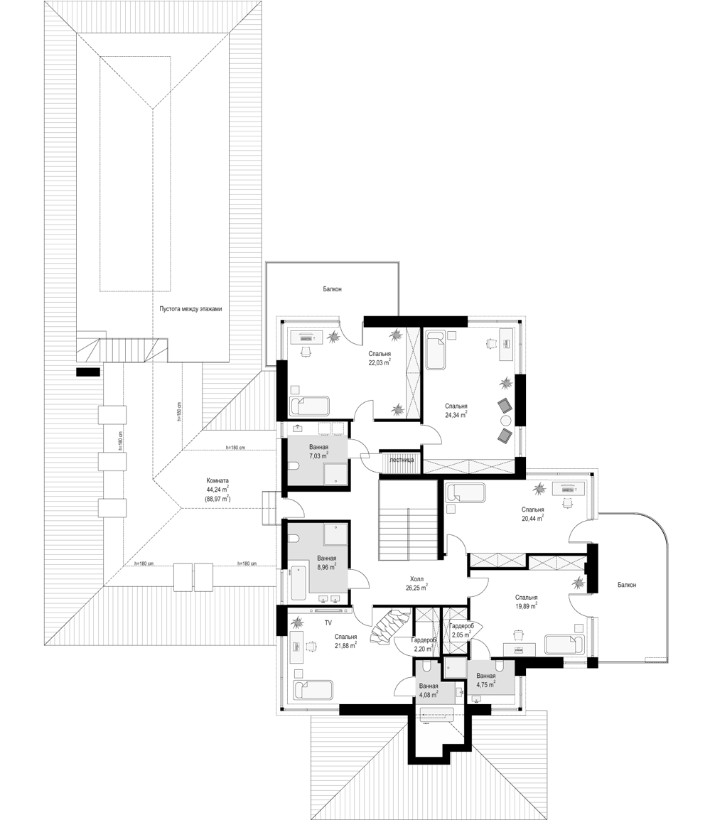
S8-703 (Резиденция с Панорамным Видом). Этот современный дом завораживает своей атмосферой спокойствия. Простота форм, минимализм и обилие естественного света подчеркивают функциональность каждой детали в интерьере. Фасады здания выполнены в нейтральных оттенках, оттенках песка и светло-сером. Внешний вид дома демонстрирует высокий вкус и внимание к деталям, а множество окон делает дом светлым и прозрачным. Это обеспечивает владельцам максимальный комфорт и роскошь в повседневной жизни. Планировка первого этажа создает идеальные условия для проживания. Внутри предусмотрены четыре основные зоны: прихожая, гостиная, жилая и зона отдыха. Роскошная зона отдыха включает в себя сауну и большой бассейн с выходом на террасу за домом. Из гостиной есть выход на ту же террасу. Уютный камин в гостиной создает атмосферу тепла и уюта. Гостиная с камином и прилегающая терраса - прекрасное место для семейных мероприятий или спокойного отдыха. На втором этаже расположены уютные спальни, некоторые из них имеют балконы, а одна даже с лестницей на мезонин. К хозяйственной зоне относятся двухместный гараж, помещение для котельной, кладовая и хозяйственное помещение, соединяющее основную часть дома с гаражом.

Дизайн интерьера

Понравился этот дом?

Отправьте нам сообщение, и мы ответим на все интересующие вас вопросы.

Аккредитованы в ведущих банках

Корзина
Ваша корзина пуста
Выберите в каталоге интересующий товар и нажмите кнопку "В корзину"
Отложенные товары
Отложенных товаров нет
Выберите в каталоге интересующий товар и нажмите кнопку "В избранное"
Заказать звонок