Проекты домов Оформить
ипотеку
Стройматериалы Участки Строительство
Выберите свой регион строительства
Крымский федеральный округ
Крым
Close mobile menu

Характеристики дома:

Площадь дома

281 m2

Кол-во жилых комнат

5
Стоимость проекта АР+КР
84,370 ₽

Хотите изменить планировку?

Отправьте запрос архитектору и обсудите с ним ваши идеи по перепланировке.

О проекте

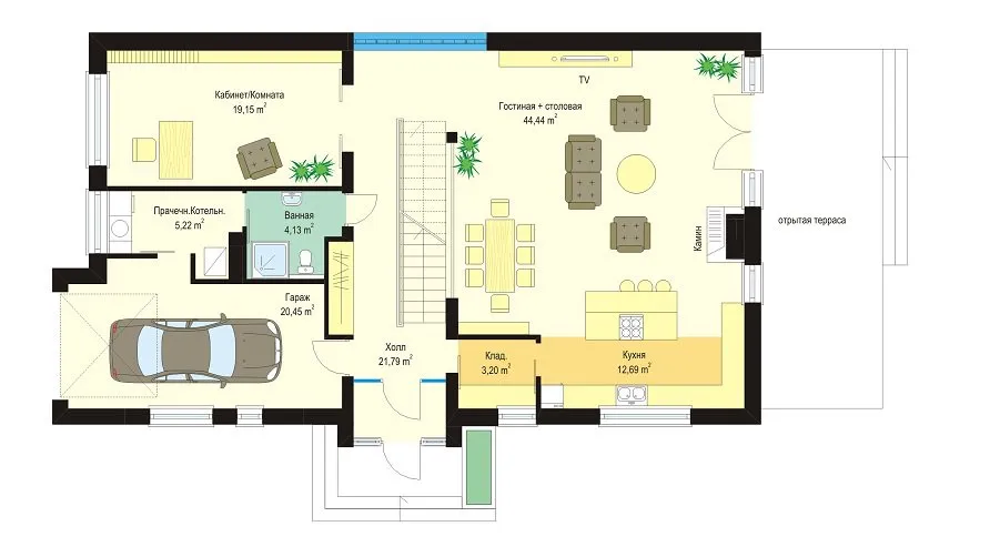
S8-281-2 (Современный). Этот проект коттеджа представляет собой современный дом, созданный в соответствии с последними тенденциями для тех, кто ценит стиль и комфорт. Объемные окна, окружающие здание, превращают интерьер в светлое и просторное пространство, которое полюбят любители яркости и свободы. Главный вход расположен со стороны основной части дома, где находится широкая лестница с перилами. Крыша дома выполнена в мансардном стиле с окном на кровле спереди.
Для строительства наружных стен могут быть использованы кирпич или газобетонные блоки. Этот дом не только внешне, но и внутренней планировкой соответствует современным требованиям комфорта. Здесь предусмотрены гараж и парковка, зона spa, просторная терраса, столовая и гостевая комната. Главной задачей такой планировки является максимальное увеличение свободного пространства, и в этом случае гостиная, кухня и холл объединены именно так.
Второй этаж включает в себя 4 спальни, туалет, 2 ванные комнаты и холл-балкон, с которого открывается вид на гостиную. Согласно проекту, каждый этаж имеет 2 уровня. Нижний уровень первого этажа предназначен для бойлерной, гаража и зоны отдыха. Кроме того, в доме предусмотрен используемый чердак, доступный по основной лестнице. Этот дом идеален для постоянного проживания большой семьи или в качестве летнего домика у моря.

Модификации проекта

Аккредитованы в ведущих банках

Корзина
Ваша корзина пуста
Выберите в каталоге интересующий товар и нажмите кнопку "В корзину"
Отложенные товары
Отложенных товаров нет
Выберите в каталоге интересующий товар и нажмите кнопку "В избранное"
Заказать звонок