Проекты домов Оформить
ипотеку
Стройматериалы Участки Строительство
Выберите свой регион строительства
Крымский федеральный округ
Крым
Close mobile menu

Характеристики дома:

Площадь дома

242 m2

Кол-во жилых комнат

5
Стоимость проекта
0 ₽

Хотите изменить планировку?

Отправьте запрос архитектору и обсудите с ним ваши идеи по перепланировке.

О проекте

S7-242 Большой семейный коттедж идеально подходит для круглогодичной эксплуатации. Постройка выглядит массивно и лаконично, лишена вычурных элементов. Она придется по вкусу любителям простых архитектурных решений и просторных жилых помещений.
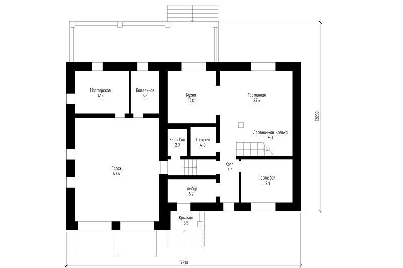
Особенностью этого дома является гараж на два автомобиля. Внутри проектировщики предлагают устроить мастерскую и котельную. Выйдя из машины, можно сразу попасть в комнаты. Это решение оценят все жители дома в холодный, ветреный или дождливый день.
Гостиная, кухня и гостевая спальня отделены друг от друга. Открытая конструкция лестницы позволяет сделать дневную зону больше и не перегружает интерьер. Для общего пользования предусмотрен санузел, внизу есть также небольшая кладовая.
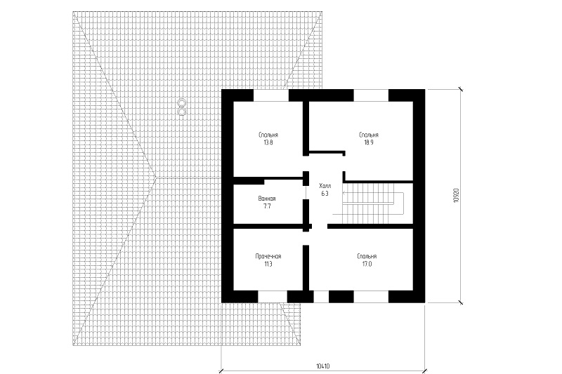
Второй этаж предназначен для сна. Из компактного холла у лестницы легко попасть в одну из трех спален или общую ванну. В комнате владельцев проектировщики сделали дополнительное сантехническое помещение.

Аккредитованы в ведущих банках

Корзина
Ваша корзина пуста
Выберите в каталоге интересующий товар и нажмите кнопку "В корзину"
Отложенные товары
Отложенных товаров нет
Выберите в каталоге интересующий товар и нажмите кнопку "В избранное"
Заказать звонок