Проекты домов Оформить
ипотеку
Стройматериалы Участки Строительство
Выберите свой регион строительства
Крымский федеральный округ
Крым
Close mobile menu

Характеристики дома:

Площадь дома

371 m2

Кол-во жилых комнат

6+
Стоимость проекта АР+КР
73,800 ₽

Хотите изменить планировку?

Отправьте запрос архитектору и обсудите с ним ваши идеи по перепланировке.

О проекте

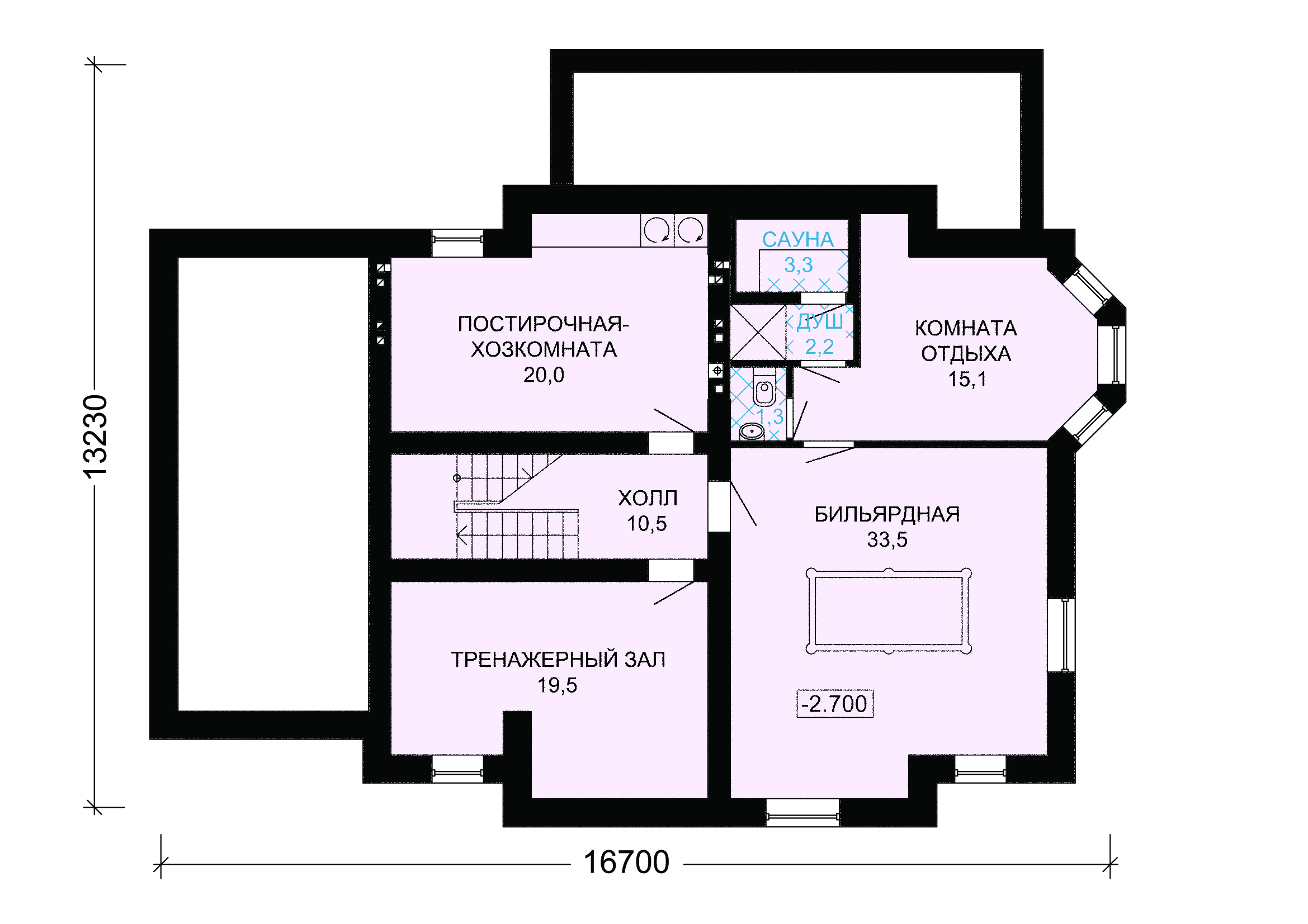
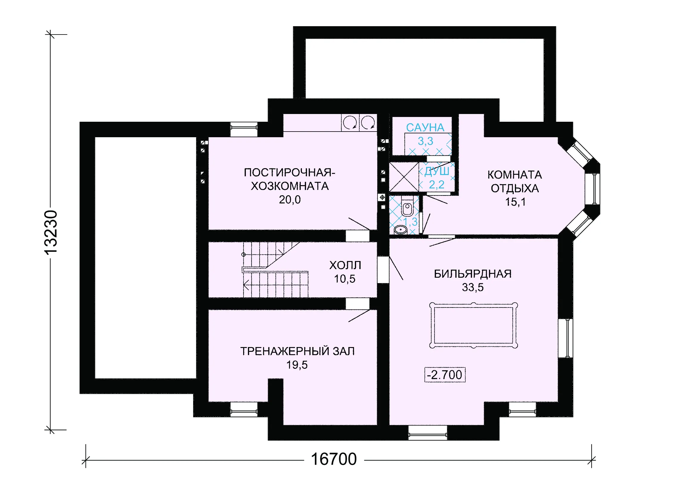
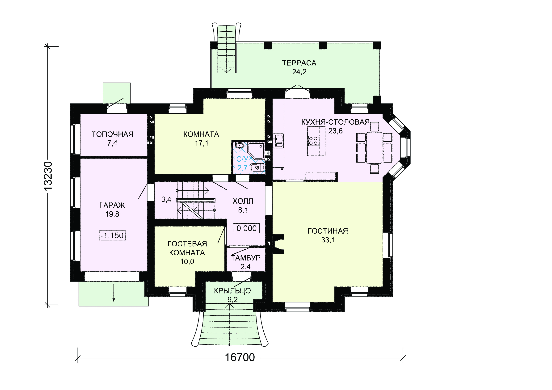
S7-371 (3-21) Огромный загородный особняк с двумя полноценными этажами и цокольным уровнем. Его можно порекомендовать людям, которые не привыкли прибегать к компромиссам при выборе жилища для себя и своих близких. В коттедже каждая комната поражает своими размерами, а сама планировка — продуманностью и функциональностью. Гостиная площадью в 33 кв. метра оборудована камином и частично отделена от кухни перегородкой. Объединяющим фактором служит эркер, который используется как столовая. На первом уровне расположены две дополнительные комнаты, полноценный санузел и гараж с топочной. Второй этаж занимают пять жилых помещений с общей ванной. Есть также холл-игровая, которая находится над гаражом. Спустившись в цоколь, можно попасть в бильярдную, сауну с полноценной комнатой отдыха и сантехническим блоком, тренажерный зал и постирочную.

Аккредитованы в ведущих банках

Корзина
Ваша корзина пуста
Выберите в каталоге интересующий товар и нажмите кнопку "В корзину"
Отложенные товары
Отложенных товаров нет
Выберите в каталоге интересующий товар и нажмите кнопку "В избранное"
Заказать звонок