Проекты домов Оформить
ипотеку
Стройматериалы Участки Строительство
Выберите свой регион строительства
Крымский федеральный округ
Крым
Close mobile menu

Характеристики дома:

Площадь дома

215.8 m2

Кол-во жилых комнат

6+
Стоимость проекта АР+КР
56,800 ₽

Хотите изменить планировку?

Отправьте запрос архитектору и обсудите с ним ваши идеи по перепланировке.

О проекте

Модификация популярного проекта 3-65 с гаражом на два автомобиля.
Перед Вами большой двухэтажный дом из газобетона с кирпичной облицовкой и гаражом на две машины. Количество спален позволит спокойно разместиться семье минимум с 2-3 детьми.
Большой гараж вмещает две машины, защищая их от снега и дождя. Припарковавшись, вы не должны выходить на улицу – сразу заходим в дом и проходим в гостиную. Здесь есть всё: и кухня, и обеденный стол, и большой диван для всей семьи. Для дневной зоны спроектировали ванную комнату. Кроме того, на этаже есть полноценная жилая комната: её можно сделать гостевой спальней, детской или кабинетом. На заднем дворе есть отличная терраса для времяпрепровождения на свежем воздухе.
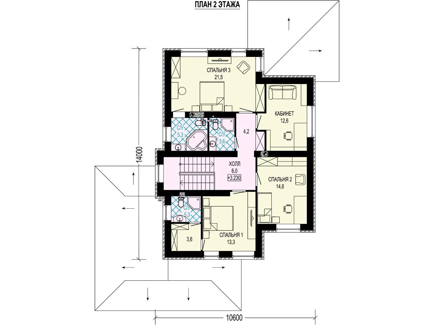
Второй этаж полностью отведен под ночную зону. Здесь четыре жилых комнаты: три спальни и кабинет, который тоже может стать спальней. Одна комната выполнена в формате мастер-спальни (со своей гардеробной и ванной), в еще одной – собственная ванная комната. На этаже организован еще один санузел для нужд проживающих.

Аккредитованы в ведущих банках

Корзина
Ваша корзина пуста
Выберите в каталоге интересующий товар и нажмите кнопку "В корзину"
Отложенные товары
Отложенных товаров нет
Выберите в каталоге интересующий товар и нажмите кнопку "В избранное"
Заказать звонок