info@vfstroy.ru
Москва, 1-й Кожевнический переулок, дом 6, строение 1, этаж 3
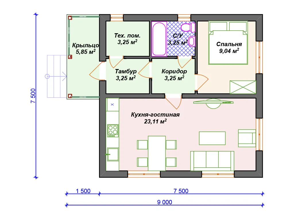
Проект одноэтажного каменного дом S4-51 (К-297)
Характеристики дома:
Площадь дома
51 m2
Кол-во жилых комнат
1
Стоимость проекта АР+КР
39,000 ₽
О проекте
Характеристики проекта S4-51 (К-297)
| Классификация архитектора | К-297 |
| Общая площадь | 51 м2 |
| Количество этажей | одноэтажный |
| Гараж | без гаража |
| Возможный материал кровли | металлочерепица, гибкая черепица, керамическая черепица, композитная черепица, цементно-песчаная черепица, фальцевая кровля |
| Количество жилых комнат | 1 |
| Тип перекрытий | по деревянным балкам |
| Материал стен | газобетон/пеноблоки, кирпич, керамические блоки, керамзитовые блоки, пеноблоки |