Проекты домов Оформить
ипотеку
Стройматериалы Участки Строительство
Выберите свой регион строительства
Крымский федеральный округ
Крым
Close mobile menu

Характеристики дома:

Площадь дома

312 m2

Кол-во жилых комнат

5
Стоимость проекта АР+КР
40,600 ₽

Хотите изменить планировку?

Отправьте запрос архитектору и обсудите с ним ваши идеи по перепланировке.

О проекте

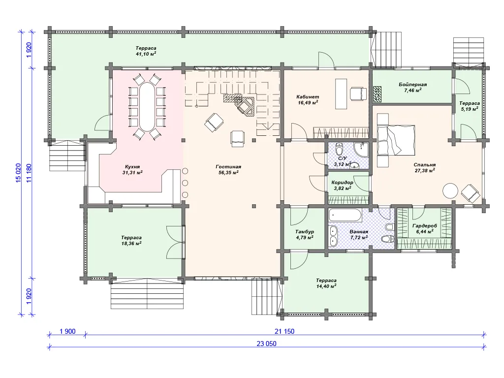
S4-312(ДС-094) Дом прямоугольной формы, выполнен из бруса размером 200х180 мм. Конструкция кровли - простая двухскатная. Строительство здания осуществляется на свайно-ростверковом фундаменте. Войти в дом можно с любой из трёх террас расположенных вокруг дома. Главным входом считается терраса 14.4 кв м, с которой проходим в тамбур, а затем в прихожую. В доме гостиная 56.36 кв м с большими окнами совмещена с кухней 31 кв м. Большой кабинет 16.49 кв м, будет очень удобен для тех, кто работает на дому. Спальня 27.38 кв с собственной ванной комнатой и гардеробом. На этаже предусмотрен небольшой совмещённый с/у с душевой кабиной. Для отопления дома запроектирована котельная под газовое оборудование с индивидуальным входом. Поднимаемся на второй этаж и с лестницы выходим в холл, из которого открывается вид на «второй свет». На этаже две равноценные по площади спальни, каждая имеет собственный балкон. Так же на этаже предусмотрена ванная комната. Планировка этого дома очень удобная и комфортная для жизни современной семьи.

Аккредитованы в ведущих банках

Корзина
Ваша корзина пуста
Выберите в каталоге интересующий товар и нажмите кнопку "В корзину"
Отложенные товары
Отложенных товаров нет
Выберите в каталоге интересующий товар и нажмите кнопку "В избранное"
Заказать звонок