Проекты домов Оформить
ипотеку
Стройматериалы Участки Строительство
Выберите свой регион строительства
Крымский федеральный округ
Крым
Close mobile menu

Характеристики дома:

Площадь дома

280 m2

Кол-во жилых комнат

4
Стоимость проекта АР+КР
38,400 ₽

Хотите изменить планировку?

Отправьте запрос архитектору и обсудите с ним ваши идеи по перепланировке.

О проекте

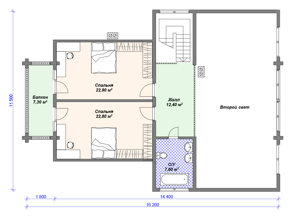
S4-280 (ДС-095) Деревянный дом прямоугольной формы, выполнен из бруса размером 200х180 мм. Конструкция крыши - двухскатная. Строительство здания осуществляется на свайно-ростверковом фундаменте. Вход в дом осуществляется с одной из террас (в доме их три), выполняющая роль крыльца. Через небольшой тамбур попадаем сразу в зону гостиной, площадью 74.8 кв м, из которой можно выйти на на просторную г-образную террасу. Гостиная занимает большую часть первого этажа. Кухня в доме 25 кв м, совмещена с гостиной в одно помещение. Планировка этажа предусматривает комнату с собственным с/у и гардеробом и совмещённый с/у с душевой кабиной. В доме также предусмотрено помещение для котельной с отдельным выходом на улицу. Поднимаемся на этаж, с лестницы выходим в холл, из которого открывается вид на «второй свет», расположенный над гостиной. На втором этаже две комфортные по площади спальни почти 23 кв м с выходом на балкон. Большой и уютный деревянный дом для круглогодичного проживание.

Аккредитованы в ведущих банках

Корзина
Ваша корзина пуста
Выберите в каталоге интересующий товар и нажмите кнопку "В корзину"
Отложенные товары
Отложенных товаров нет
Выберите в каталоге интересующий товар и нажмите кнопку "В избранное"
Заказать звонок