Проекты домов Оформить
ипотеку
Стройматериалы Участки Строительство
Выберите свой регион строительства
Крымский федеральный округ
Крым
Close mobile menu

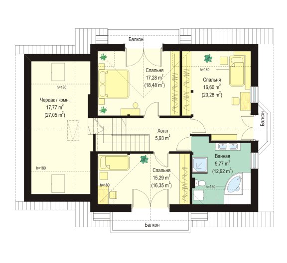
Характеристики дома:

Площадь дома

232 m2

Кол-во жилых комнат

5
Стоимость проекта АР+КР
62,270 ₽

Хотите изменить планировку?

Отправьте запрос архитектору и обсудите с ним ваши идеи по перепланировке.

О проекте

S8-232 (Домик Юлька 4). Если у вас ограниченное пространство для строительства, то проект Домик Юлька 4 будет идеальным решением всех ваших проблем с местоположением. Этот проект специально разработан для небольшого двора, поэтому все его части расположены максимально компактно. Поскольку площадь одного этажа недостаточна для большой семьи, было принято решение обустроить жилой чердак, что обеспечивает комфортное проживание семьи из пяти человек.
Для экономии места на строительной площади был уменьшен размер гаража. Теперь там помещается только один автомобиль, но хозяйственное оборудование, вероятно, не поместится. Однако на первом этаже дома предусмотрена комната, которую можно использовать в качестве кладовой для хранения инвентаря.
Также была уменьшена площадь крыши. Крыша с двумя скатами теперь ниже и имеет более крутой наклон, чем в других аналогичных проектах.
Несмотря на то, что в каждом аспекте проекта явно просматривается стремление к экономии пространства, это никоим образом не влияет на качество постройки. Стены и фундамент выполнены из прочного бетона. Двойной фасад обит утеплителем из строительной ваты, а внешний слой покрыт прочным тонким слоем штукатурки.

Дизайн интерьера

Понравился этот дом?

Отправьте нам сообщение, и мы ответим на все интересующие вас вопросы.

Аккредитованы в ведущих банках

Корзина
Ваша корзина пуста
Выберите в каталоге интересующий товар и нажмите кнопку "В корзину"
Отложенные товары
Отложенных товаров нет
Выберите в каталоге интересующий товар и нажмите кнопку "В избранное"
Заказать звонок