Проекты домов Оформить
ипотеку
Стройматериалы Участки Строительство
Выберите свой регион строительства
Крымский федеральный округ
Крым
Close mobile menu

Характеристики дома:

Площадь дома

220 m2

Кол-во жилых комнат

3
Стоимость проекта АР+КР
44,900 ₽

Хотите изменить планировку?

Отправьте запрос архитектору и обсудите с ним ваши идеи по перепланировке.

О проекте

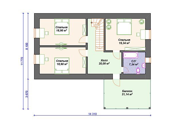
S4-220 (К-020) Дом выполнен из кирпича, с облицовкой наружных стен - облицовочным кирпичом. Строительство здания осуществляется на фундаменте - монолитная плита. Входим в дом с г-образной террасы площадью 18.58 кв м, накрытой отдельной крышей от дома. Первый этаж отведен под дневную зону и технические помещения. Терраса заменяет крыльцо, с которой можно попасть в прихожую и котельную 7.69 кв м, рассчитанную под газовое оборудование. Так же в котельной предусмотрен дополнительный вход с террасы. Из прихожей далее проходим в небольшой холл около 4 кв м. Сразу при входе по правую руку размещён с/у с ванной, прямо вход в кухню 18.34 кв м. Большая половина первого этажа отведена под просторную и большую гостиную, площадь которой 63.95 кв м. Здесь же расположена межэтажная лестница. Второй этаж спальная зона из трёх спальных комнат и совмещённого с/у с ванной 7 кв м. Две комнаты 18.90 кв м и одна 19.34 кв м. На этаже предусмотрен балкон, расположенный над террасой. Дом достаточно простой, но с комфортными площадями. Отлично подойдёт для круглогодичного проживания.

Аккредитованы в ведущих банках

Корзина
Ваша корзина пуста
Выберите в каталоге интересующий товар и нажмите кнопку "В корзину"
Отложенные товары
Отложенных товаров нет
Выберите в каталоге интересующий товар и нажмите кнопку "В избранное"
Заказать звонок