Проекты домов Оформить
ипотеку
Стройматериалы Участки Строительство
Выберите свой регион строительства
Крымский федеральный округ
Крым
Close mobile menu

Характеристики дома:

Площадь дома

207 m2

Кол-во жилых комнат

6+
Стоимость проекта АР+КР
44,500 ₽

Хотите изменить планировку?

Отправьте запрос архитектору и обсудите с ним ваши идеи по перепланировке.

О проекте

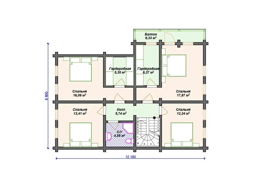
S4-207 (А-036). Перед Вами массивный и солидный двухэтажный коттедж, выполненный в классическом для загородного домостроения стиле. Интересная комбинация дерева и камня выделяет этот дом на фоне других строений.
На первом этаже очень функциональная планировка: есть гостевая спальня, ванная комната и 45-метровая кухня-гостиная. Всё логично: кто-то готовит, кто-то уже ест за столом, а кто-то досматривает серию сериала - и всё это происходит в едином пространстве, которое к тому же продолжается просторной террасой.
На втором этаже суммарно четыре спальни - у двух есть собственные гардеробные, а у родительской еще и выход на балкон. Конечно, на этаже спроектирована вторая ванная комната.

Аккредитованы в ведущих банках

Корзина
Ваша корзина пуста
Выберите в каталоге интересующий товар и нажмите кнопку "В корзину"
Отложенные товары
Отложенных товаров нет
Выберите в каталоге интересующий товар и нажмите кнопку "В избранное"
Заказать звонок