Проекты домов Оформить
ипотеку
Стройматериалы Участки Строительство
Выберите свой регион строительства
Крымский федеральный округ
Крым
Close mobile menu

Характеристики дома:

Площадь дома

210 m2

Кол-во жилых комнат

5
Стоимость проекта АР+КР
37,400 ₽

Хотите изменить планировку?

Отправьте запрос архитектору и обсудите с ним ваши идеи по перепланировке.

О проекте

Деревянный дом прямоугольной формы, выполнен из бревна диаметром 240 мм. Конструкция крыши - простая двухскатная с мансардными окнами. Строительство здания осуществляется на свайно-ростверковом фундаменте.

Входим в дом с г-образной террасы около 46 кв м - спереди она является крыльцом, а с левой стороны можно разместить террасную мебель для отдыха. Терраса накрыта одной крышей с домом. Заходим в тамбур 7.33 кв м, из которого по левой стороне ведёт дверь в котельную 6 кв м. На первом этаже сформирована дневная зона: кухня-гостиная, кабинет и совмещённый с/у с ванной 6 кв м. Площадь кухни-гостиной 36 кв м, помещение просторное и светлое, благодаря большому количеству окон. Камин расположенный в зоне гостиной, придаст помещению тепла и уюта. Из зоны кухни предусмотрен выход на террасу.
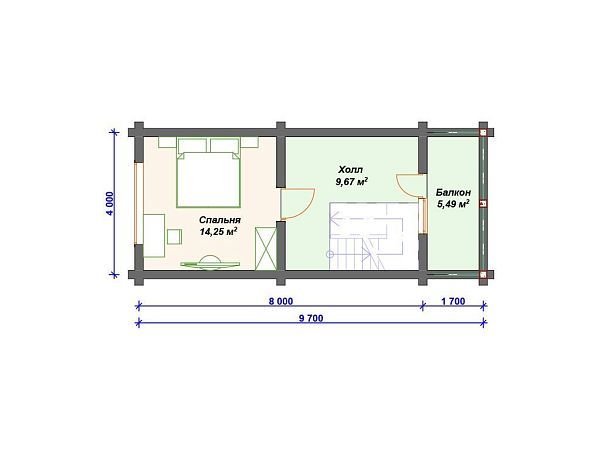
Поднимаемся на второй этаж по комфортной п-образной лестнице и проходим в холл, по правой стороне которого расположен второй свет. На этаже три спальни и совмещённый с/у с ванной. В одной из спален предусмотрен выход на балкон.

Проект дома рассчитан для круглогодичного проживания семьи из 4-5 человек.

Аккредитованы в ведущих банках

Корзина
Ваша корзина пуста
Выберите в каталоге интересующий товар и нажмите кнопку "В корзину"
Отложенные товары
Отложенных товаров нет
Выберите в каталоге интересующий товар и нажмите кнопку "В избранное"
Заказать звонок