Проекты домов Оформить
ипотеку
Стройматериалы Участки Строительство
Выберите свой регион строительства
Крымский федеральный округ
Крым
Close mobile menu

Характеристики дома:

Площадь дома

199 m2

Кол-во жилых комнат

4
Стоимость проекта АР+КР
43,700 ₽

Хотите изменить планировку?

Отправьте запрос архитектору и обсудите с ним ваши идеи по перепланировке.

О проекте

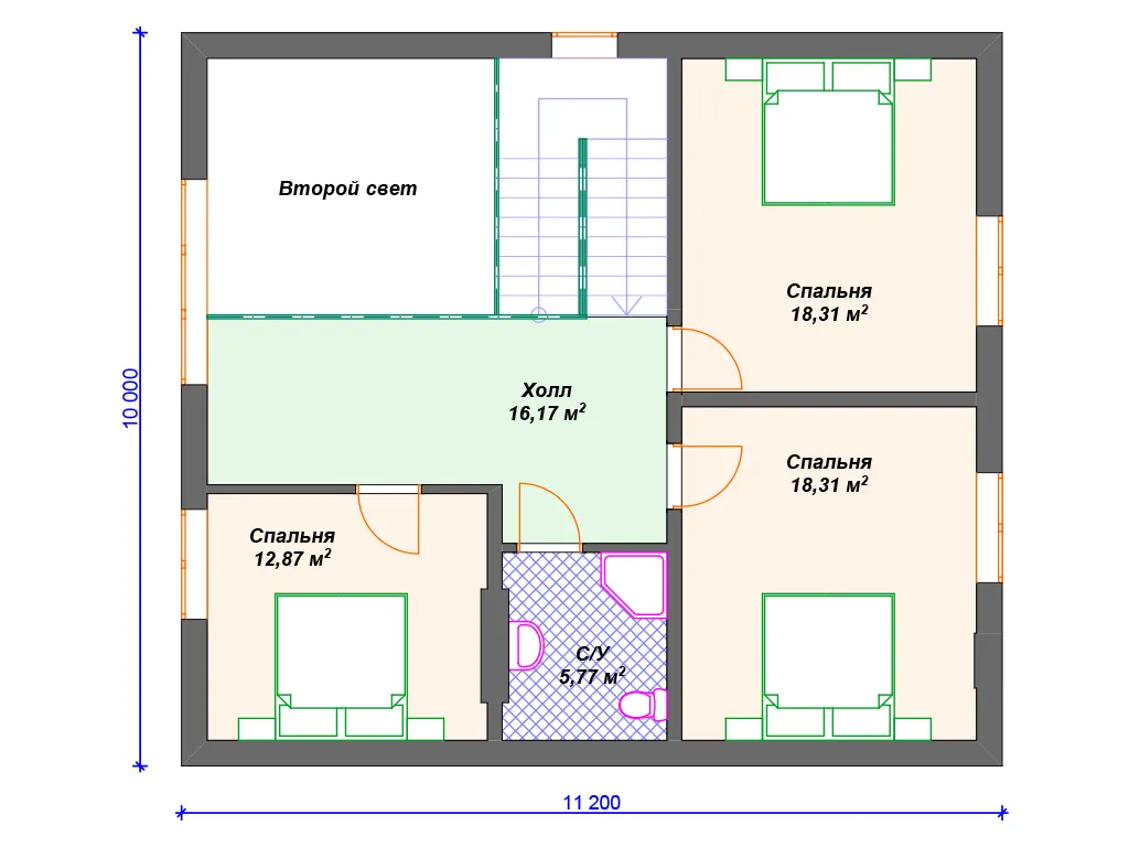
S4-199 (К-146) Дом прямоугольной формы, выполнен из блоков, с отделкой наружных стен - штукатурка. Вход в дом осуществляется с крыльца, площадью 6 кв м, накрытого односкатной крышей. Заходим в тамбур 4 кв м, откуда сразу можно попасть в котельную, площадью почти 5 кв м. Здесь можно установить электрический котел или использовать как кладовую. Далее попадаем в холл 9.7 кв м, в котором по левой стороне холла расположены небольшая гардеробная 3.6 кв м и санузел почти 5 кв м с душевым поддоном. Холл плавно переходит в гостиную, площадь которой 34 кв м. Кухня в доме 13 кв м. Комната на этаже удобна в качестве рабочего кабинета. Площадь 18 кв м. Из гостиной предусмотрен выход на просторную террасу. Лестница в доме является центральной "фигурой" и стоит прямо в гостиной - не всегда стоит ее прятать, она будет отличным украшением Вашей гостиной. Поднимаемся на второй этаж и проходим в просторный холл 16 кв м. На этаже три спальни: две 18 кв м и 12.8 кв м. Так же имеется с/у 5.7 кв м с душевым поддоном. Второй свет расположен над гостиной. Дом накрыт двускатной крышей. Дом вмещает в себя все необходимые помещения, причем с очень комфортными площадями. Несмотря на то, что дом достаточно простой, смотрится он благородно.

Аккредитованы в ведущих банках

Корзина
Ваша корзина пуста
Выберите в каталоге интересующий товар и нажмите кнопку "В корзину"
Отложенные товары
Отложенных товаров нет
Выберите в каталоге интересующий товар и нажмите кнопку "В избранное"
Заказать звонок