info@vfstroy.ru
Москва, 1-й Кожевнический переулок, дом 6, строение 1, этаж 3
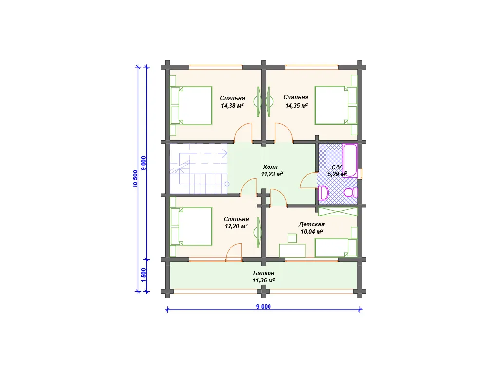
Проект деревянного дома с террасой S4-198 (ДС-034)
Характеристики дома:
Площадь дома
198 m2
Кол-во жилых комнат
6+
Стоимость проекта АР+КР
35,000 ₽
О проекте
Характеристики проекта S4-198 (ДС-034)
| Классификация архитектора | ДС-034 |
| Общая площадь | 198 м2 |
| Количество этажей | двухэтажный |
| Гараж | без гаража |
| Возможный материал кровли | металлочерепица, гибкая черепица, керамическая черепица, композитная черепица, цементно-песчаная черепица, фальцевая кровля |
| Количество жилых комнат | 6+ |
| Тип перекрытий | по деревянным балкам |
| Материал стен | оцилиндрованное бревно, профилированный брус, клееный брус |