Проекты домов Оформить
ипотеку
Стройматериалы Участки Строительство
Выберите свой регион строительства
Крымский федеральный округ
Крым
Close mobile menu

Характеристики дома:

Площадь дома

182 m2

Кол-во жилых комнат

5
Стоимость проекта АР+КР
38,500 ₽

Хотите изменить планировку?

Отправьте запрос архитектору и обсудите с ним ваши идеи по перепланировке.

О проекте

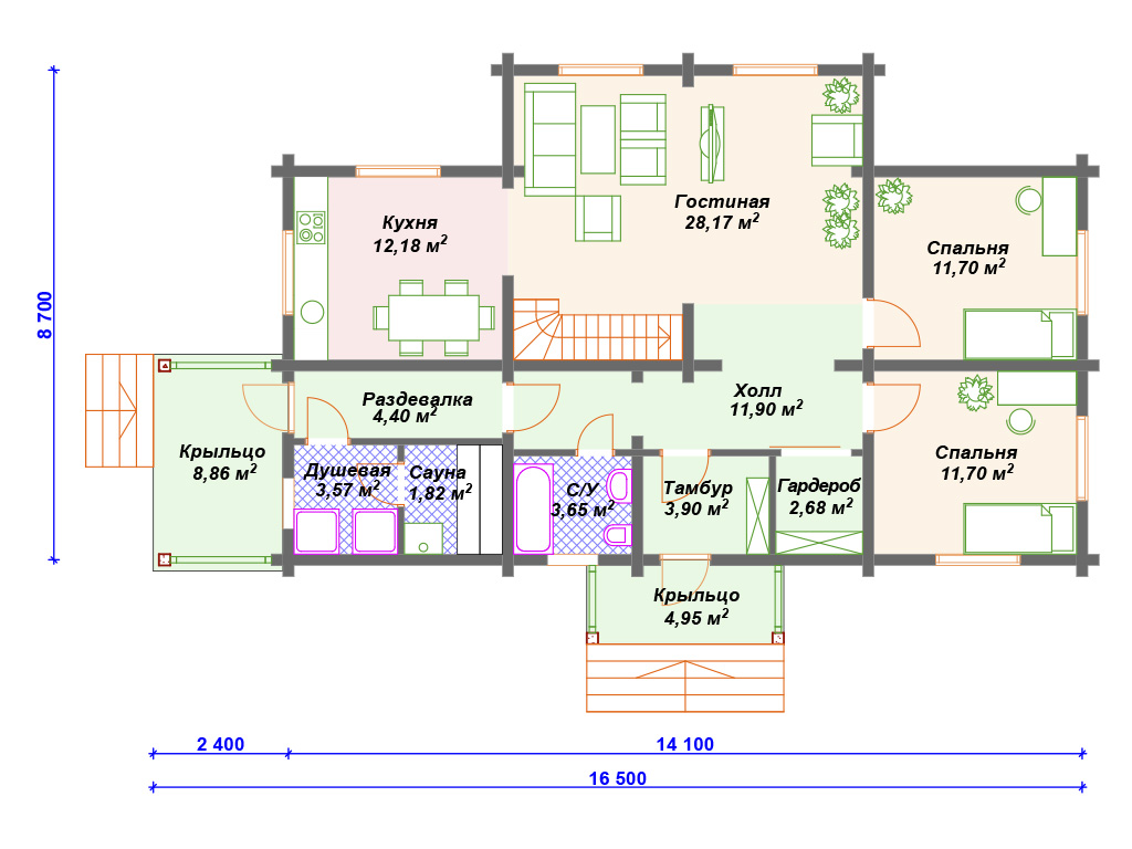
S4-182 (ДС-144). Этот дом дизайнеры спроектировали для владельцев узких участков. В плане он имеет форму вытянутого прямоугольника, что дает больше гибкости при его размещении. Однако это никак не повлияло на внутреннюю планировку. Она осталась такой же удобной, как в стандартных квадратных коттеджах.
Центральную часть постройки занимает гостиная со «вторым светом». Потолок сделан по свесам крыши, благодаря чему комната кажется более величественной и идеально подходит для приема больших компаний.
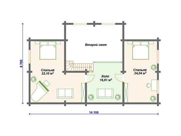
Кухня находится отдельно и может использоваться как столовая. Также на первом уровне есть две спальни, отдельный общий гардероб и санузел. Еще две жилые комнаты находятся наверху, причем площадь одной из них — 32. кв. м. Холл у лестницы легко переделать в дополнительную гостиную.
Бонус для застройщиков — собственная сауна. Она оборудована раздевалкой, душевой и парилкой. Отдельная дверь на крыльцо позволяет выйти на улицу и приятно провести время на террасе в передней части постройки.

Аккредитованы в ведущих банках

Корзина
Ваша корзина пуста
Выберите в каталоге интересующий товар и нажмите кнопку "В корзину"
Отложенные товары
Отложенных товаров нет
Выберите в каталоге интересующий товар и нажмите кнопку "В избранное"
Заказать звонок