Проекты домов Оформить
ипотеку
Стройматериалы Участки Строительство
Выберите свой регион строительства
Крымский федеральный округ
Крым
Close mobile menu

Характеристики дома:

Площадь дома

230 m2

Кол-во жилых комнат

4
Стоимость проекта АР+КР
37,200 ₽

Хотите изменить планировку?

Отправьте запрос архитектору и обсудите с ним ваши идеи по перепланировке.

О проекте

Деревянный дом прямоугольной формы, выполнен из бревна. Конструкция крыши - двухскатная. Общая площадь дома 230 кв м. Строительство здания осуществляется на свайно-ростверковом фундаменте.

Входи в дом с небольшой террасы накрытой отдельной от дома двухскатной крышей. Сразу с террасы попадаем в холл дома, в котором по правой стороне вход в комнату 10.64 кв м и рядом межэтажная лестница. По левой стороне маленький с/у с раковиной и вход в кухню-столовую 15.18 кв м, из которой можно пройти в небольшое помещение 2 кв м, которое удобно использовать как кладовую. Пройдя прямо через холл попадаем в зону гостиной, площадью 44.86 кв м, из которой предусмотрен выход на террасу.

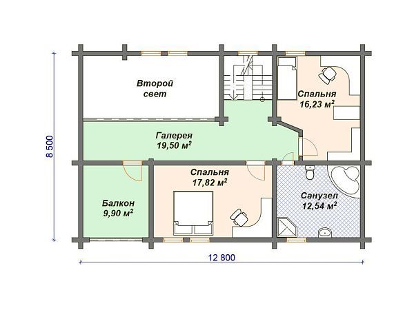
На втором этаже две спальни и комфортный совмещённый санузел с душевой кабиной. Планировка дома предполагает второй свет расположенный над гостиной. Третий этаж - две комнаты (20.46 кв м и 25.31 кв м).Из комнаты меньшей площади можно выйти на небольшой балкон.

Аккредитованы в ведущих банках

Корзина
Ваша корзина пуста
Выберите в каталоге интересующий товар и нажмите кнопку "В корзину"
Отложенные товары
Отложенных товаров нет
Выберите в каталоге интересующий товар и нажмите кнопку "В избранное"
Заказать звонок