Проекты домов Оформить
ипотеку
Стройматериалы Участки Строительство
Выберите свой регион строительства
Крымский федеральный округ
Крым
Close mobile menu

Характеристики дома:

Площадь дома

179 m2

Кол-во жилых комнат

4
Стоимость проекта АР+КР
37,000 ₽

Хотите изменить планировку?

Отправьте запрос архитектору и обсудите с ним ваши идеи по перепланировке.

О проекте

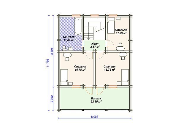
S4-179 (ДС-149) Двухэтажный мансардный дом прямоугольной формы, выполнен из бруса 145х176 мм. Конструкция кровли - простая двухскатная. Строительство здания осуществляется на свайно-ростверковом фундаменте. Планировка этого дома удобная и комфортная для жизни современной семьи. Вход в дом осуществляется через прихожую, расположенную за габаритами дома. Затем проходим в небольшой холл 7 кв м, который занимает минимум пространства - все отдано в полезное пространство. Из холла можно попасть в котельную, рассчитанную под газовое оборудование и в основную часть дома - гостиную. Площадь гостиной 38 кв м. Здесь размещена лестница на второй этаж, под маршем которой расположен вход в санузел с ванной, площадью 7 кв м. Для удобства из гостиной предусмотрен выход на террасу. Кухня в доме около 15 кв м. Второй этаж мансардный. Мансарда достаточно просторная, разделена на три спальни (11 кв м и две комнаты по 16.7 кв м). Где также предусмотрена большой совмещённый с/у с ванной. Площадь 11 кв м. Дом очень популярен среди наших заказчиков, так как он является экономически выгодным - все в нем есть - ничего лишнего. Прекрасно подойдёт для проживания семьи из 4 человек.

Аккредитованы в ведущих банках

Корзина
Ваша корзина пуста
Выберите в каталоге интересующий товар и нажмите кнопку "В корзину"
Отложенные товары
Отложенных товаров нет
Выберите в каталоге интересующий товар и нажмите кнопку "В избранное"
Заказать звонок