Проекты домов Оформить
ипотеку
Стройматериалы Участки Строительство
Выберите свой регион строительства
Крымский федеральный округ
Крым
Close mobile menu

Характеристики дома:

Площадь дома

118 m2

Кол-во жилых комнат

3
Стоимость проекта АР+КР
41,400 ₽

Хотите изменить планировку?

Отправьте запрос архитектору и обсудите с ним ваши идеи по перепланировке.

О проекте

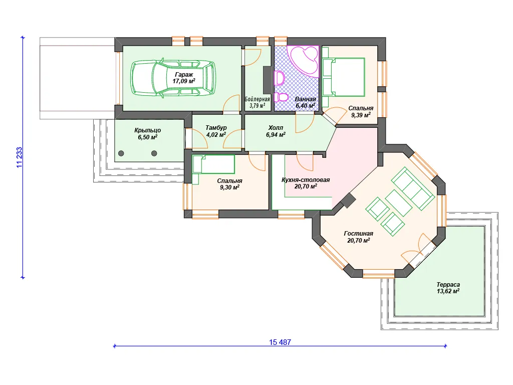
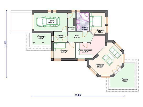
S4-118 (К-135) Одноэтажный дом прямоугольной формы, выполнен из газобетона толщиной 300 мм с отделкой наружных стен - штукатурка. Дом накрыт четырёхскатной крышей (шатровая). Входим в дом с крыльца накрытого одной крышей с домом и проходим в тамбур 4 кв м. Из тамбура предусмотрен вход в гараж 17 кв м с входом в бойлерную. Далее проходим в холл почти 7 кв м. На этаже две небольшие спальни, равноценные по площади 9 кв м. Ванная комната в доме 6 кв м. Пройдя прямо через холл попадаем в кухню-столовую 20.7 кв м, из которой уже проходим в гостиную. Гостиная расположена в эркере с выходом через распашные двери на террасу. Помещение светлое, просторное, благодаря большому количеству окон. Одноэтажный дом небольшой по площади, но имеет всё для круглогодичного проживания семьи из 3 человек.

Аккредитованы в ведущих банках

Корзина
Ваша корзина пуста
Выберите в каталоге интересующий товар и нажмите кнопку "В корзину"
Отложенные товары
Отложенных товаров нет
Выберите в каталоге интересующий товар и нажмите кнопку "В избранное"
Заказать звонок