Проекты домов Оформить
ипотеку
Стройматериалы Участки Строительство
Выберите свой регион строительства
Крымский федеральный округ
Крым
Close mobile menu

Характеристики дома:

Площадь дома

115 m2

Кол-во жилых комнат

2
Стоимость проекта АР+КР
36,900 ₽

Хотите изменить планировку?

Отправьте запрос архитектору и обсудите с ним ваши идеи по перепланировке.

О проекте

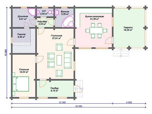
S4-115 (ДС-089) Деревянный дом г-образной формы, выполнен из бруса размером 180х160 мм. Конструкция кровли - простая двухскатная. Вход в дом осуществляется через тамбур, который освещается естественным светом посредством 2х окон, расположенных на главном фасаде дома. Площадь тамбура позволяет разместить небольшую гардеробную, т. к. в доме не предусмотрено какого либо шкафа для верхней одежды. Заходим сразу в гостиную, площадью 27 кв м, из которой имеется доступ во все помещения дома. Сразу при входе по левую руку расположена спальня 14.5 кв м. Пройдя через гостиную попадаем в маленький коридор 2 кв м, из которого доступ в "мокрую зону" - ванная, маленький с/у с раковиной, душевая и парная. Так же из гостиной проходим в кухню. Площадь кухни 21 кв м, отсюда предусмотрен выход на террасу. Терраса – уютная летняя площадка на открытом воздухе, где можно создать отличную зону отдыха. Дом подойдет как на роль небольшого дачного домика, так и в качестве жилого дома для семьи из двух человек.

Аккредитованы в ведущих банках

Корзина
Ваша корзина пуста
Выберите в каталоге интересующий товар и нажмите кнопку "В корзину"
Отложенные товары
Отложенных товаров нет
Выберите в каталоге интересующий товар и нажмите кнопку "В избранное"
Заказать звонок