Проекты домов Оформить
ипотеку
Стройматериалы Участки Строительство
Выберите свой регион строительства
Крымский федеральный округ
Крым
Close mobile menu

Характеристики дома:

Площадь дома

88 m2

Кол-во жилых комнат

3
Стоимость проекта АР+КР
52,000 ₽

Хотите изменить планировку?

Отправьте запрос архитектору и обсудите с ним ваши идеи по перепланировке.

О проекте

S3-88 (Z326). Это небольшой, но при этом стильный и функциональный дом для небольшой семьи. Такой дом станет отличным выбором для тех, кто хочет приобщиться к загородной жизни, не тратя при этом много денег.

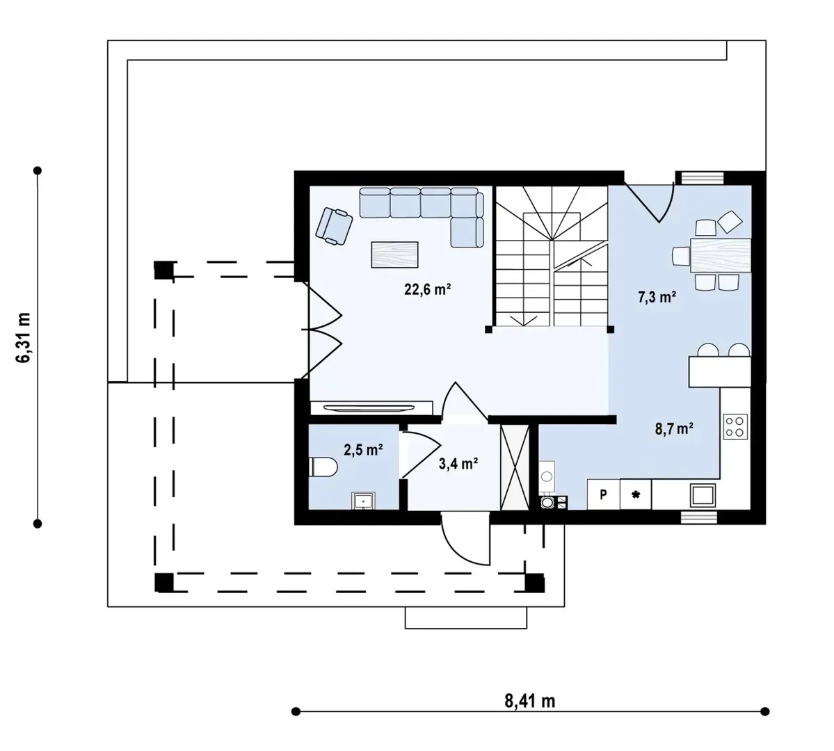
На первом этаже строения расположилась дневная зона. По сути, это одна большая кухня-гостиная, частично разделенная лестницей, ведущей на мансардный этаж. В правой части – собственно кухня и обеденная зона, а в левой – просторная гостиная с диваном и телевизором. Здесь есть конечно же и санузел.

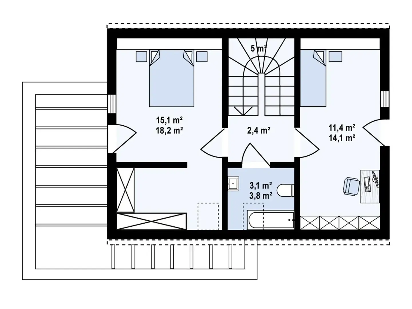
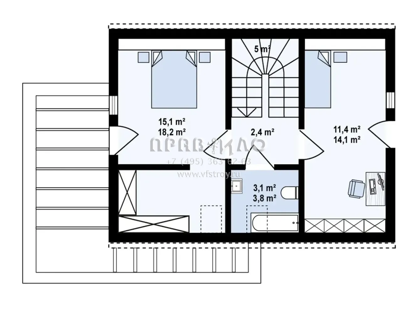
А на мансардном этаже спроектированы две спальни и ванная комната. Словом, в доме есть всё для комфортной жизни семьи с одним ребёнком. Если вам кажется, что этот дом для вас, обращайтесь в компанию ПРАВИЛО – мы возведем такой коттедж быстро и качественно!

Аккредитованы в ведущих банках

Корзина
Ваша корзина пуста
Выберите в каталоге интересующий товар и нажмите кнопку "В корзину"
Отложенные товары
Отложенных товаров нет
Выберите в каталоге интересующий товар и нажмите кнопку "В избранное"
Заказать звонок