Проекты домов Оформить
ипотеку
Стройматериалы Участки Строительство
Выберите свой регион строительства
Крымский федеральный округ
Крым
Close mobile menu

Характеристики дома:

Площадь дома

273 m2

Кол-во жилых комнат

5
Стоимость проекта АР+КР
81,100 ₽

Хотите изменить планировку?

Отправьте запрос архитектору и обсудите с ним ваши идеи по перепланировке.

О проекте

S3-273 (z558 el) Современный дом с мансардным этажом, большой площадью остекления и гаражом на две машины со входом в прихожую. Помимо гостевых и жилых помещений, проектировщики позаботились о рабочем кабинете для любителей вести бизнес без визита в офис.
Проект отличается от классических решений. Гостиная в доме объединена с обеденной зоной, выстроена в «два света» и имеет огромные окна. Кухня размещена отдельно, хотя и не изолирована перегородками.
Веранда защищена с трех сторон стенами, чтобы создать на ней комфорт в любую погоду. Попасть на нее можно из коридора, кабинета и гостиной. Благодаря такому решению удалось объединить внутреннее и внешнее пространства. Оставшееся место заняли гостевой туалет и кладовая.
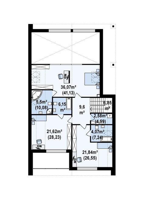
Верхний уровень состоит из трех спален. Все комнаты имеют собственные санузлы. Также на мансарде находится отдельная прачечная.

Аккредитованы в ведущих банках

Корзина
Ваша корзина пуста
Выберите в каталоге интересующий товар и нажмите кнопку "В корзину"
Отложенные товары
Отложенных товаров нет
Выберите в каталоге интересующий товар и нажмите кнопку "В избранное"
Заказать звонок