Проекты домов Оформить
ипотеку
Стройматериалы Участки Строительство
Выберите свой регион строительства
Крымский федеральный округ
Крым
Close mobile menu

Характеристики дома:

Площадь дома

194 m2

Кол-во жилых комнат

6+
Стоимость проекта АР+КР
58,100 ₽

Хотите изменить планировку?

Отправьте запрос архитектору и обсудите с ним ваши идеи по перепланировке.

О проекте

S3-194-2 (Z92 GL) Если в вашей семье есть маленькие дети или пожилые родители, нужно подумать о коттедже с жилой комнатой на первом этаже. Она пригодится и в случае, если владелец привык работать из дома. Но при этом нужно удостовериться, что на первом уровне достаточно площади для размещения гостиной и кухни. 

В этом коттедже недостатка в свободном месте нет. Хотя снаружи он и кажется небольшим, грамотное планирование внутреннего пространства позволило разместить в доме все необходимое. 

Открытая планировка кухни и гостиной сделали дом просторным. Проектировщики позаботились о том, чтобы в комнатах было достаточно света благодаря большим окнам и остекленному эркеру. А в летнее время зона отдыха становится еще больше за счет веранды. 

Также собственнику коттеджа не придется отказываться от гаража. Он пристроен к дому, находится под общей крышей и имеет выход в жилую зону. Над ним можно устроить склад для хранения вещей или игровую зону. 
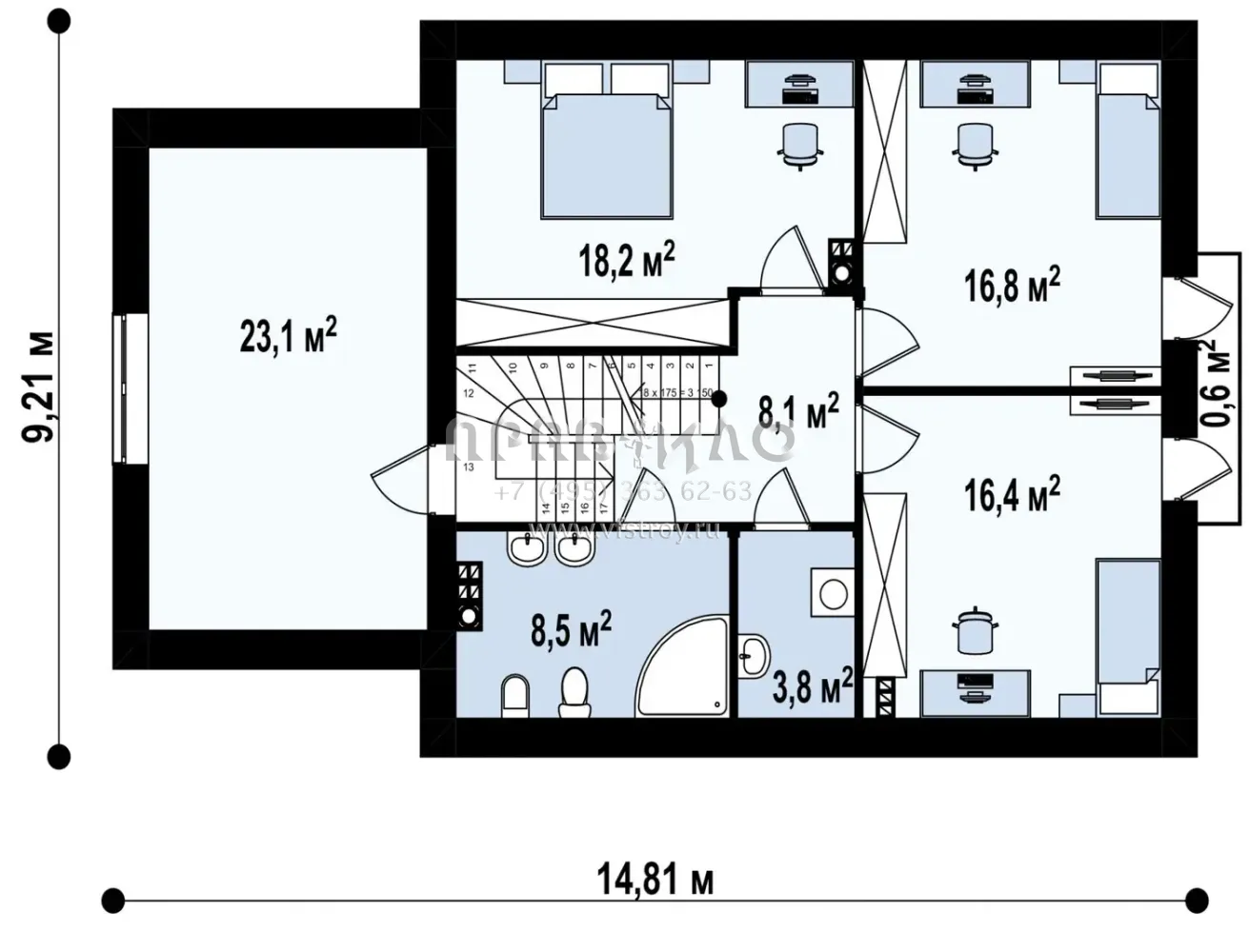
В мансарде расположены три спальни, ванная комната и туалет. Еще один санузел для удобства расположен внизу. 

3D Модель

Аккредитованы в ведущих банках

Корзина
Ваша корзина пуста
Выберите в каталоге интересующий товар и нажмите кнопку "В корзину"
Отложенные товары
Отложенных товаров нет
Выберите в каталоге интересующий товар и нажмите кнопку "В избранное"
Заказать звонок