Проекты домов Оформить
ипотеку
Стройматериалы Участки Строительство
Выберите свой регион строительства
Крымский федеральный округ
Крым
Close mobile menu

Характеристики дома:

Площадь дома

147 m2

Кол-во жилых комнат

5
Стоимость проекта АР+КР
52,000 ₽

Хотите изменить планировку?

Отправьте запрос архитектору и обсудите с ним ваши идеи по перепланировке.

О проекте

S3-147(Z113) - статный, светлый, с деревянными элементами и облицовочным камнем экстерьер этого дома привлекает внимание. Сочетание классического и современного архитектурного стиля добавляют дому особого шарма. Такой проект идеально подойдет для проживания семьи из 4-5 человек.

Первый этаж дома традиционно отведен под дневную зону. Здесь мы видим просторную гостиную-кухню с камином и выходом на террасу. Пространство террасы прекрасно подойдет для посиделок с друзьями и семьей на свежем воздухе. Хозяйки особенно оценят кладовую, прилегающую к кухне и пригодную для хранения запасов еды и полезных в быту вещей. На первом этаже спроектирован кабинет, но в зависимости от Ваших предпочтений он может стать и дополнительной комнатой для, например, пожилых членов семьи, которым не очень удобно подниматься наверх. Тут же Вы найдете и полноценный санузел с душевой кабинкой.

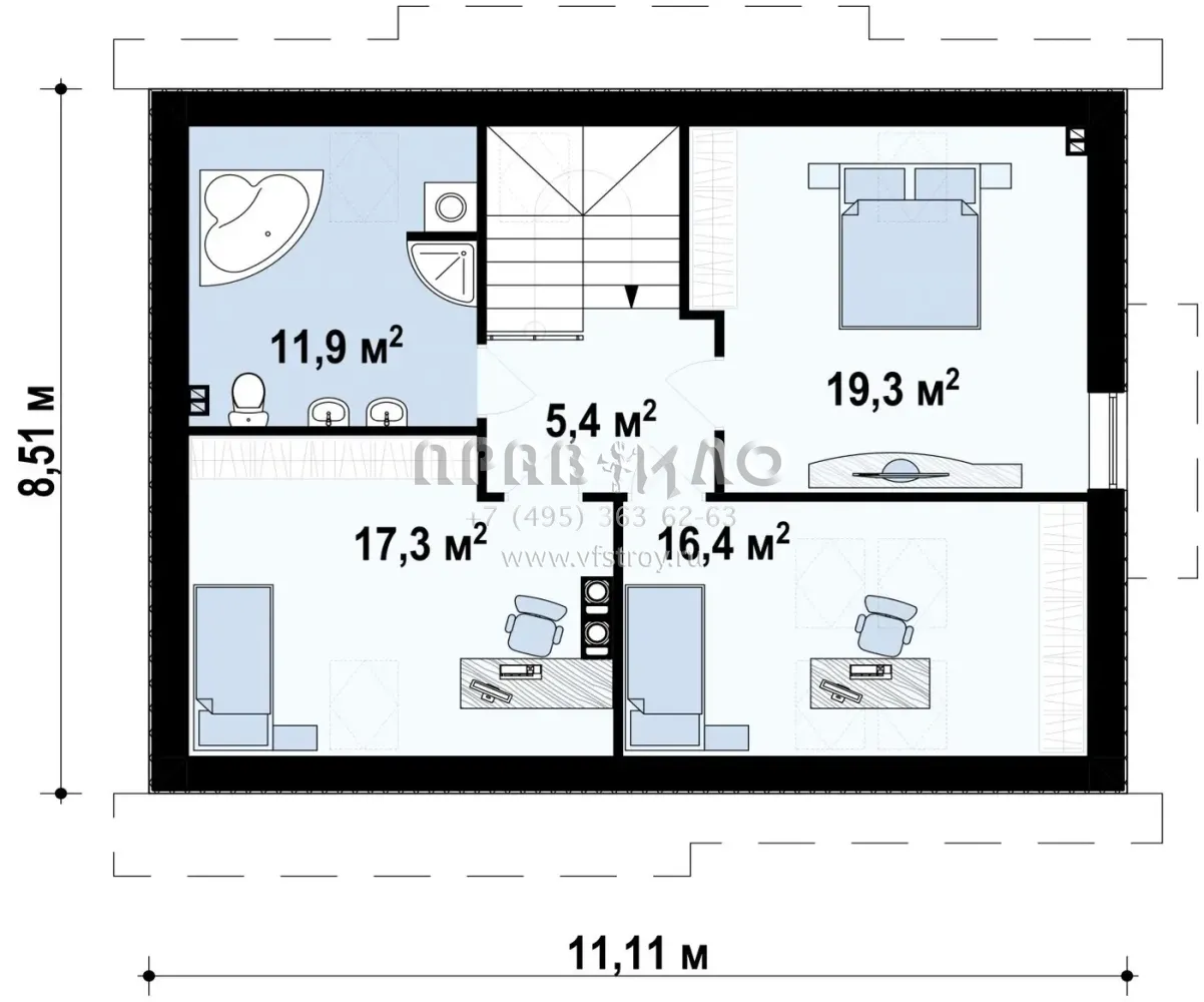
Второй этаж полностью занимают три спальные комнаты, притом каждая – довольно большая, и просторная общая ванная комната и с душевой кабиной, и с ванной.

Аккредитованы в ведущих банках

Корзина
Ваша корзина пуста
Выберите в каталоге интересующий товар и нажмите кнопку "В корзину"
Отложенные товары
Отложенных товаров нет
Выберите в каталоге интересующий товар и нажмите кнопку "В избранное"
Заказать звонок