Проекты домов Оформить
ипотеку
Стройматериалы Участки Строительство
Выберите свой регион строительства
Крымский федеральный округ
Крым
Close mobile menu

Характеристики дома:

Площадь дома

144 m2

Кол-во жилых комнат

4
Стоимость проекта АР+КР
52,000 ₽

Хотите изменить планировку?

Отправьте запрос архитектору и обсудите с ним ваши идеи по перепланировке.

О проекте

S3-144(Z299) - дом обладает изысканной и в то же время простой формой, что добавляет ему утонченности и шарма. Хотя конструкция кажется довольно компактной, дом умело располагает пространством и создает уютную атмосферу для жизни и отдыха.
Один из главных элементов — двускатная крыша, которая привносит некую легкость и гармонию в архитектуру. Крыша делает возможным присутствие уютной террасы над гаражом, которая станет идеальным местом для проведения вечеров с друзьями или просто наслаждения прекрасным видом на природу.
Коттедж может быть построен на узком участке земли, что делает его привлекательным для потенциальных владельцев. Экстерьер коттеджа сочетается с любым ландшафтом.
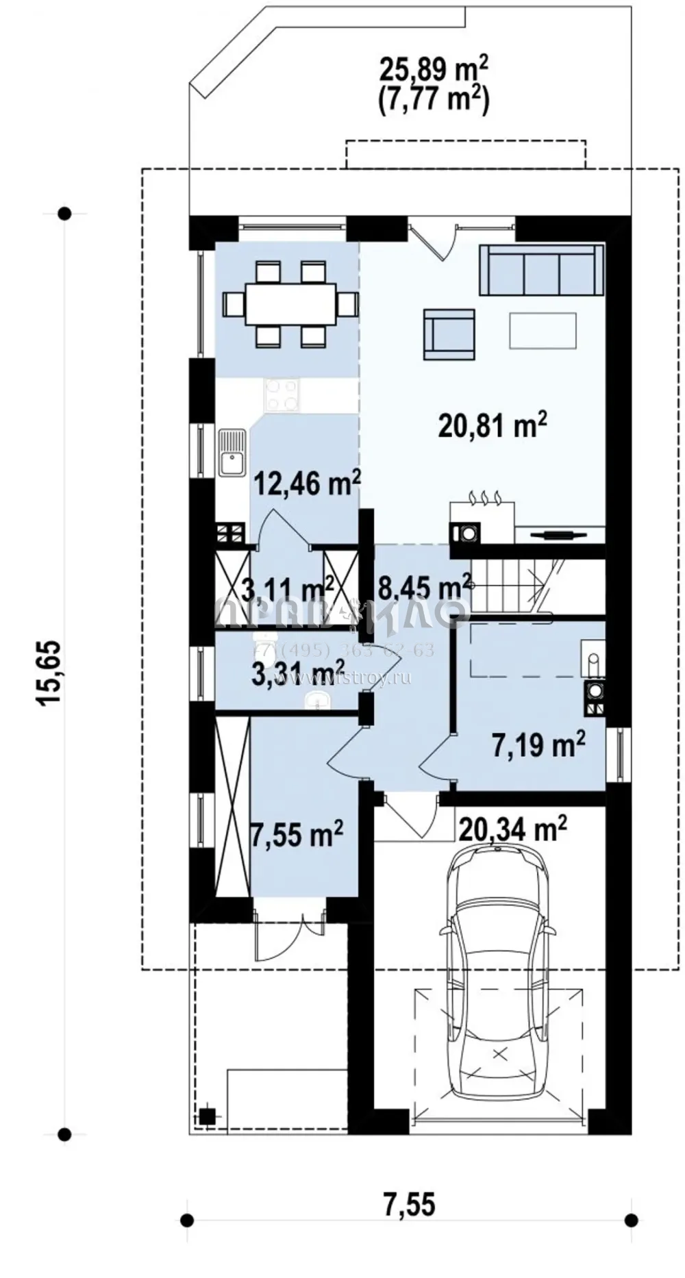
Удачная планировка включает в себя кухню, гостиную, санузел, холл, котельную, прихожую и террасу на первом этаже. Мансардный этаж — три спальни, две ванные комнаты, вместительная гардеробная, холл, просторная терраса и балкон.
Сочетание практичности, функциональности и сдержанной красоты — решение для небольшого загородного участка.

3D Модель

Аккредитованы в ведущих банках

Корзина
Ваша корзина пуста
Выберите в каталоге интересующий товар и нажмите кнопку "В корзину"
Отложенные товары
Отложенных товаров нет
Выберите в каталоге интересующий товар и нажмите кнопку "В избранное"
Заказать звонок