Проекты домов Оформить
ипотеку
Стройматериалы Участки Строительство
Выберите свой регион строительства
Крымский федеральный округ
Крым
Close mobile menu

Характеристики дома:

Площадь дома

135,6 m2

Кол-во жилых комнат

5
Стоимость проекта АР+КР
58,100 ₽

Хотите изменить планировку?

Отправьте запрос архитектору и обсудите с ним ваши идеи по перепланировке.

О проекте

S3-135 (Z431 v1) 
Это проект очень симпатичного дома небольших габаритов, который при этом вмещает в себя достаточное количество жилых помещений для проживания семьи с двумя детьми. А архитектура коттеджа точно привлечёт внимание своей строгостью с одной стороны и нестандартными формами с другой.

На первом этаже мы видим просторную прихожую, за которой начинается большое пространство, объединившее в себе кухню и гостиную. Конечно, нашлось место и для полноценной ванной комнаты. Большим преимуществом дома являются панорамные окна в гостиной, которые призваны не только впускать дневной свет в комнату, но и выполнять функцию дверей, ведущих на уютную террасу.

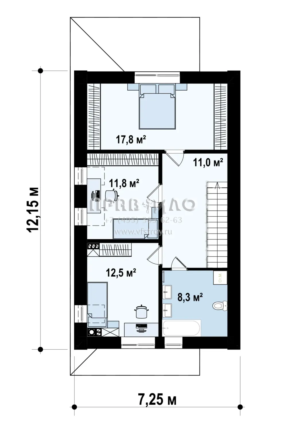
Поднимаемся на второй этаж здания и попадаем в зону ночного отдыха. Здесь нас встречают три спальни (родительская – почти 18м²) и просторная ванная комната. Планировка дома максимально понятная и функциональная: жилых комнат и санузлов достаточно и есть всё необходимое для жизни, но при этом проектировщикам удалось на относительно небольшом метраже сохранить объём и простор помещений, где каждому члену семьи или гостю будет комфортно находиться.

Аккредитованы в ведущих банках

Корзина
Ваша корзина пуста
Выберите в каталоге интересующий товар и нажмите кнопку "В корзину"
Отложенные товары
Отложенных товаров нет
Выберите в каталоге интересующий товар и нажмите кнопку "В избранное"
Заказать звонок