Проекты домов Оформить
ипотеку
Стройматериалы Участки Строительство
Выберите свой регион строительства
Крымский федеральный округ
Крым
Close mobile menu

Характеристики дома:

Площадь дома

118 m2

Кол-во жилых комнат

4
Стоимость проекта АР+КР
77,400 ₽

Хотите изменить планировку?

Отправьте запрос архитектору и обсудите с ним ваши идеи по перепланировке.

О проекте

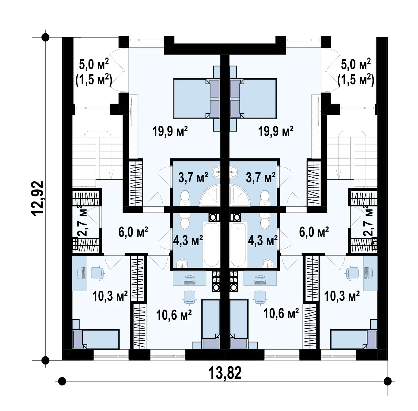
S3-118-1 (ZB7) -  Этот проект разработан для строительства таунхаусов. В коттедже могут комфортно проживать две отдельные семьи. У каждой из них будет отдельный вход и своя прилегающая территория. Внутренние помещения спланированы симметрично, поэтому ни один из владельцев не будет чувствовать себя ущемленным.

Уникальная особенность этой постройки — необычное конструктивное решение для мансардной крыши. В скатной кровле есть несколько выступающих архитектурных элементов, за счет которых увеличивается объем внутренних помещений. В комнатах не будет характерных скосов стен, что добавляет комфорта жильцам.

Удобство жителей проектировщики поставили во главу угла. Этому способствуют сразу три ванных комнаты для каждой семьи. Причем одна из них предназначена исключительно для семейной пары и изолирована от других.
Гостиная в доме оборудована камином, имеет панорамное остекление и выход на прилегающую крытую террасу.

Дизайн интерьера

Понравился этот дом?

Отправьте нам сообщение, и мы ответим на все интересующие вас вопросы.

Аккредитованы в ведущих банках

Корзина
Ваша корзина пуста
Выберите в каталоге интересующий товар и нажмите кнопку "В корзину"
Отложенные товары
Отложенных товаров нет
Выберите в каталоге интересующий товар и нажмите кнопку "В избранное"
Заказать звонок