Проекты домов Оформить
ипотеку
Стройматериалы Участки Строительство
Выберите свой регион строительства
Крымский федеральный округ
Крым
Close mobile menu

Характеристики дома:

Площадь дома

189 m2

Кол-во жилых комнат

6+
Стоимость проекта АР+КР
41,500 ₽

Хотите изменить планировку?

Отправьте запрос архитектору и обсудите с ним ваши идеи по перепланировке.

О проекте

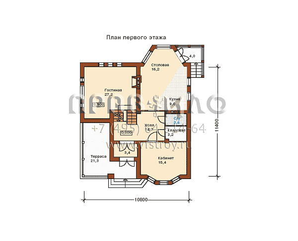
Коттедж с оригинальной и творчески проработанной фасадной частью. Элементы отделки здания взаимно дополняют друг друга. Три группы помещений расположены на разных уровнях и объединены главной лестницей. Под частью дома в цокольном этаже на двух уровнях размещены котельная, кладовые и помывочная с сауной и комнатой отдыха. На первом этаже привлекает внимание больших размеров витражное окно, придающее интерьеру двусветной гостиной с камином торжественный вид. Вместо кабинета, также расположенного на первом этаже, владелец дома может оборудовать гостевую комнату. Из столовой предусмотрен выход на приусадебный участок через небольшую террасу. На втором этаже расположены три спальных комнаты и ванная.

Аккредитованы в ведущих банках

Корзина
Ваша корзина пуста
Выберите в каталоге интересующий товар и нажмите кнопку "В корзину"
Отложенные товары
Отложенных товаров нет
Выберите в каталоге интересующий товар и нажмите кнопку "В избранное"
Заказать звонок