Проекты домов Оформить
ипотеку
Стройматериалы Участки Строительство
Выберите свой регион строительства
Крымский федеральный округ
Крым
Close mobile menu

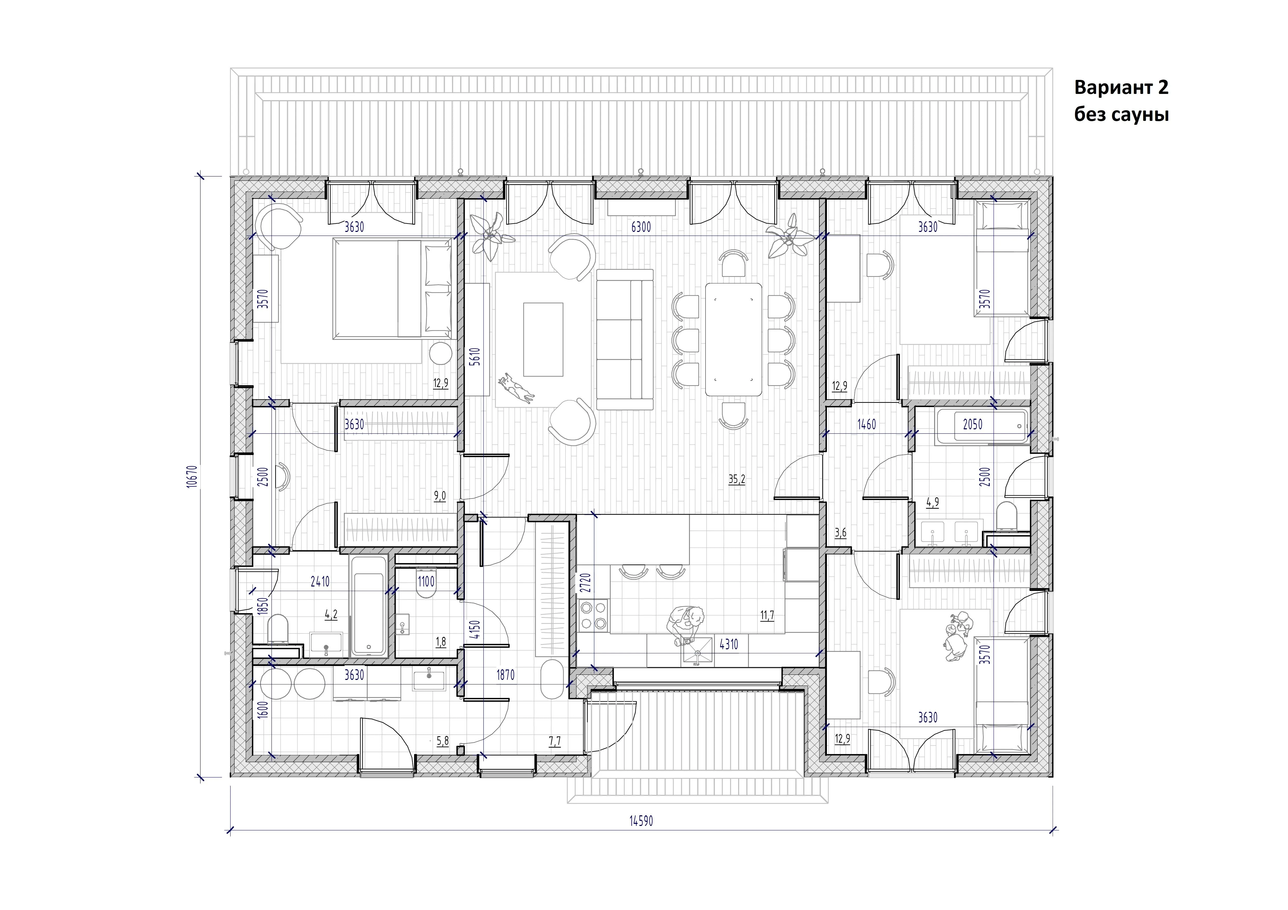
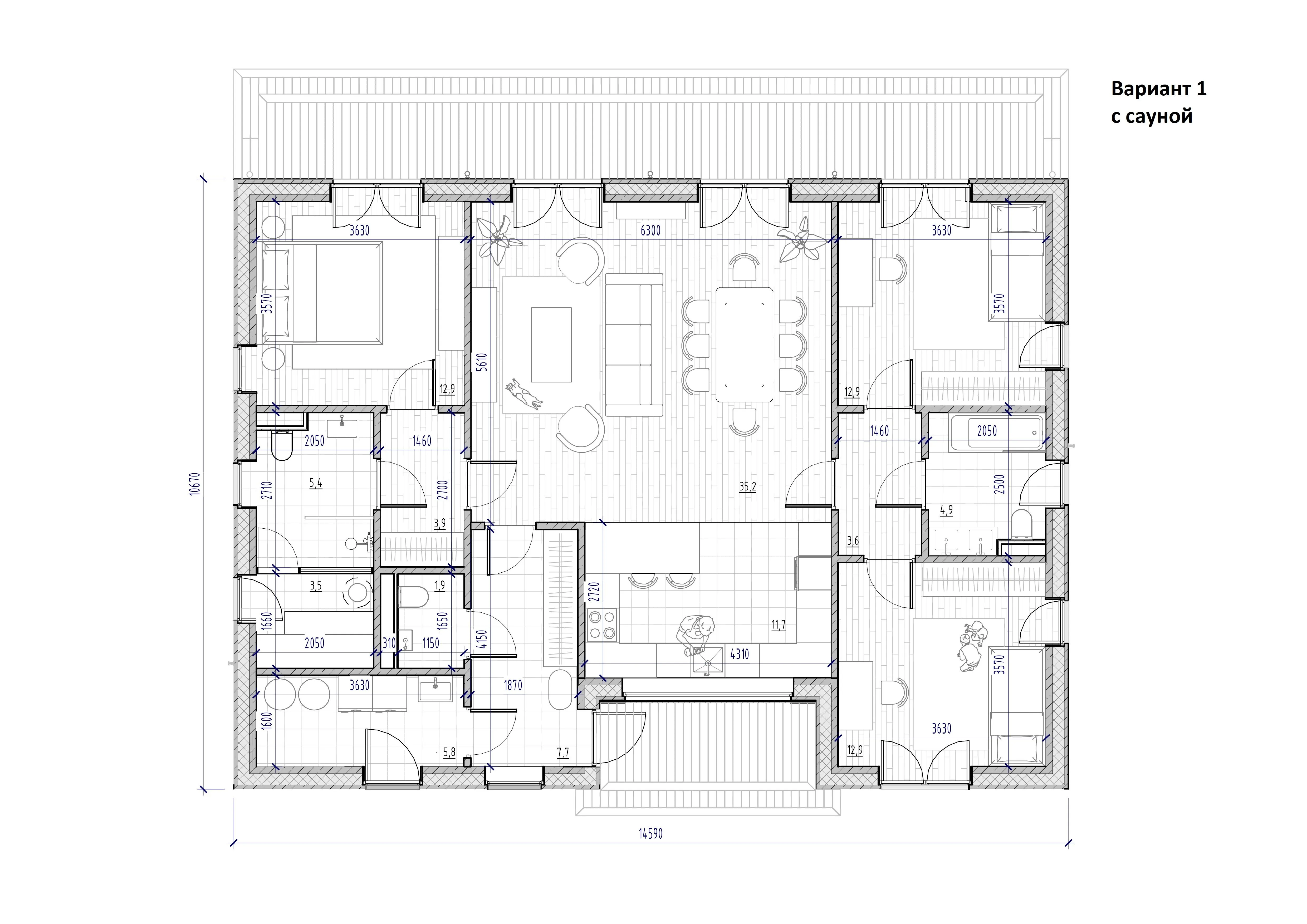
Характеристики дома:

Площадь дома

122 m2

Кол-во жилых комнат

4
Проект с подрядом

Хотите изменить планировку?

Отправьте запрос архитектору и обсудите с ним ваши идеи по перепланировке.

О проекте

SP-122-1. Универсальный проект дома для семьи из 3-4 человек. Проект выполнен с элементами русского деревянного зодчества.

Двускатная кровля с холодным чердаком выбрана как самое простое, надежное и оптимальное решение для центрального региона России.

Широкие свесы дома защищают дом от осадков и излишней инсоляции. Они позволили реализовать террасу во всю ширину внутренней стороны дома, где можно установить безрамное остекление не нарушив архитектурный стиль.

Высота потолков - 3 метра.

Технология. Производство домокомплектов из трехслойных бетонных панелей по ГОСТ 31310-2015. Панели привозят на площадку уже в готовом виде. В них заранее предусмотрены проемы под двери и окна. Внутри есть специальные каналы для электропроводки и коммуникаций, что избавляет от необходимости в дополнительном рабочем процессе. Внутренняя сторона стен не нуждается в цементной штукатурке и готова к финишной отделке.

Возведение коробки одноэтажного дома со всеми перегородками при готовом фундаменте занимает 3-5 дней. Средний срок службы — более 150 лет.

Аккредитованы в ведущих банках

Корзина
Ваша корзина пуста
Выберите в каталоге интересующий товар и нажмите кнопку "В корзину"
Отложенные товары
Отложенных товаров нет
Выберите в каталоге интересующий товар и нажмите кнопку "В избранное"
Заказать звонок