Проекты домов Оформить
ипотеку
Стройматериалы Участки Строительство
Выберите свой регион строительства
Крымский федеральный округ
Крым
Close mobile menu

Характеристики дома:

Площадь дома

540 m2

Кол-во жилых комнат

6+
Стоимость проекта АР+КР
111,670 ₽

Хотите изменить планировку?

Отправьте запрос архитектору и обсудите с ним ваши идеи по перепланировке.

О проекте

S8-540 (Дом с Видом E). Этот проект станет идеальным выбором для тех, кто хочет обладать полноценной городской виллой в современном стиле. Хотя здание и обладает внушительными размерами, оно выглядит компактно, а каждая его деталь тщательно продумана и функциональна. Дом, построенный по этому проекту, способен комфортно разместить семью до шести человек.

На первом этаже находится просторная и уютная гостиная с камином и вторым светом. В этом же пространстве расположен холл с лестницей на второй этаж и кухня-столовая. Со стороны сада объединенная зона имеет большие окна и выходы на террасу, что создает ощущение простора и открывает прекрасные виды за окном. Для любителей активного образа жизни предусмотрен спортивный зал с персональной ванной комнатой. Также на первом этаже располагаются: просторная кладовая, туалет, прихожая с гардеробной и входом в гаражный блок. В пристроенном двухместном гараже предусмотрено хозяйственное помещение и вход в котельную.

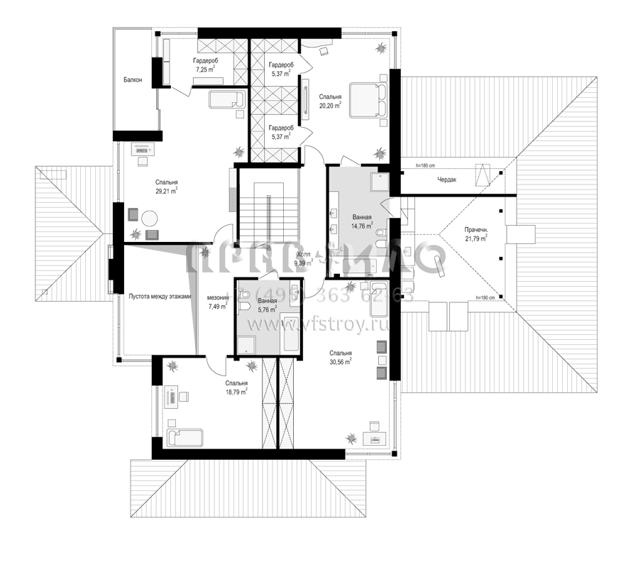
Зона для сна и отдыха находится на втором этаже и включает в себя четыре роскошные спальни. Родительские апартаменты оснащены собственной ванной комнатой и двумя гардеробными, а для остальных членов семьи предусмотрена отдельная ванная комната в холле второго этажа.

Аккредитованы в ведущих банках

Корзина
Ваша корзина пуста
Выберите в каталоге интересующий товар и нажмите кнопку "В корзину"
Отложенные товары
Отложенных товаров нет
Выберите в каталоге интересующий товар и нажмите кнопку "В избранное"
Заказать звонок