Проекты домов Оформить
ипотеку
Стройматериалы Участки Строительство
Выберите свой регион строительства
Крымский федеральный округ
Крым
Close mobile menu

Характеристики дома:

Площадь дома

451 m2

Кол-во жилых комнат

6+
Стоимость проекта АР+КР
90,870 ₽

Хотите изменить планировку?

Отправьте запрос архитектору и обсудите с ним ваши идеи по перепланировке.

О проекте

S8-451-2 (Габриэль 3). Этот план предусматривает постройку двухэтажного жилого дома на 4-6 человек. Его внешний вид достаточно привлекателен благодаря сложной крыше, которая придает ему эстетическое очарование. В проекте использованы элементы европейского модернизма, переосмысленные в современном контексте.

Большие угловые окна, балконы круглой формы, фасады с горизонтальными линиями и столовая с изящным эркером добавляют этому дому изысканности. Рассмотрены различные варианты фасадного дизайна, чтобы подчеркнуть его уникальность.

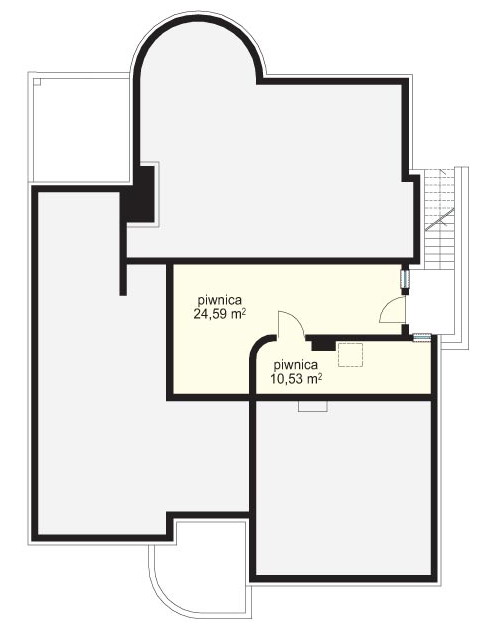
Первый этаж предназначен для жилой зоны, включающей гостиную, кабинет, просторную столовую с стильным эркером, холл и кухню с барной стойкой. Из гостиной есть выход на веранду и элегантную террасу. На другой стороне дома располагаются гараж на две машины и отдельное помещение для котельной.

На втором этаже располагается спальня для родителей, смежная ванная комната, гардеробная и просторный балкон с видом на сад. Помимо этого, на втором этаже предусмотрены три детские спальни, прачечная, ванная и спортивный зал.

Отделка здания выполнена с применением тонкослойной штукатурки. Фундамент залит бетоном, стены выполнены из двойных блоков бетона. Для крыши используются материалы: металлическая или керамическая черепица.

Аккредитованы в ведущих банках

Корзина
Ваша корзина пуста
Выберите в каталоге интересующий товар и нажмите кнопку "В корзину"
Отложенные товары
Отложенных товаров нет
Выберите в каталоге интересующий товар и нажмите кнопку "В избранное"
Заказать звонок