Проекты домов Оформить
ипотеку
Стройматериалы Участки Строительство
Выберите свой регион строительства
Крымский федеральный округ
Крым
Close mobile menu

Характеристики дома:

Площадь дома

261,70 m2

Кол-во жилых комнат

6+
Стоимость проекта АР+КР
71,800 ₽

Хотите изменить планировку?

Отправьте запрос архитектору и обсудите с ним ваши идеи по перепланировке.

О проекте

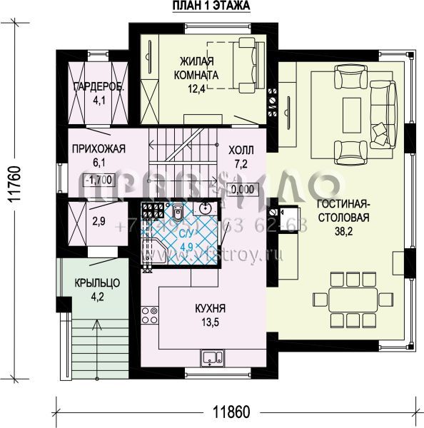
S7-261 (5-07c) В этом коттедже под нужды владельцев отведено целых три полноценных этажа. Потому в нем не придется экономить свободное пространство или размещать несколько детей в одной комнате. Большую часть цокольного уровня занимают два гаража. Здесь же есть котельная, из которой можно попасть на задний двор. Такое решение позволяет использовать помещение для хранения велосипедов, садовой техники, аксессуаров для барбекю. Но настоящий сюрприз цоколя — большая сауна с раздевалкой, душевой и отдельным санузлом. На первом этаже находится гостиная, объединенная со столовой. Преимуществом этого пространства являются огромные окна и угловое остекление. Интересно проектировщики поступили с кухней. Она проходная для удобства доставки припасов и сервировки стола. В доме целых пять жилых комнат. Большие санузлы находятся на обеих этажах. Личное пространство дополнено общим гардеробом внизу, местом для хранения вещей наверху и прачечной.

Дизайн интерьера

1/2

Понравился этот дом?

Отправьте нам сообщение, и мы ответим на все интересующие вас вопросы.

Аккредитованы в ведущих банках

Корзина
Ваша корзина пуста
Выберите в каталоге интересующий товар и нажмите кнопку "В корзину"
Отложенные товары
Отложенных товаров нет
Выберите в каталоге интересующий товар и нажмите кнопку "В избранное"
Заказать звонок