info@vfstroy.ru
Москва, 1-й Кожевнический переулок, дом 6, строение 1, этаж 3
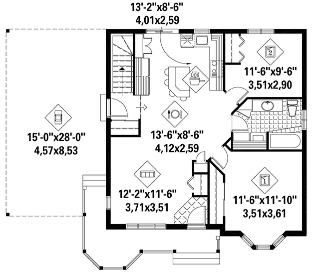
Проект одноэтажного дома с гаражом на одну машину в стиле Ранчо S5-86 (6146-00259)
Характеристики дома:
Площадь дома
125 m2
Кол-во жилых комнат
3
Индивидуальное проектирование
О проекте
Характеристики проекта S5-86 (6146-00259)
| Классификация архитектора | 6146-00259 |
| Общая площадь | 125 м2 |
| Количество этажей | одноэтажный |
| Гараж | 1 машина |
| Возможный материал кровли | металлочерепица, гибкая черепица, керамическая черепица, композитная черепица, цементно-песчаная черепица, фальцевая кровля |
| Количество жилых комнат | 3 |
| Тип перекрытий | монолитное ж/б, плиты ПК |
| Материал стен | газобетон/пеноблоки, кирпич, керамические блоки, керамзитовые блоки, пеноблоки |