info@vfstroy.ru
Москва, 1-й Кожевнический переулок, дом 6, строение 1, этаж 3
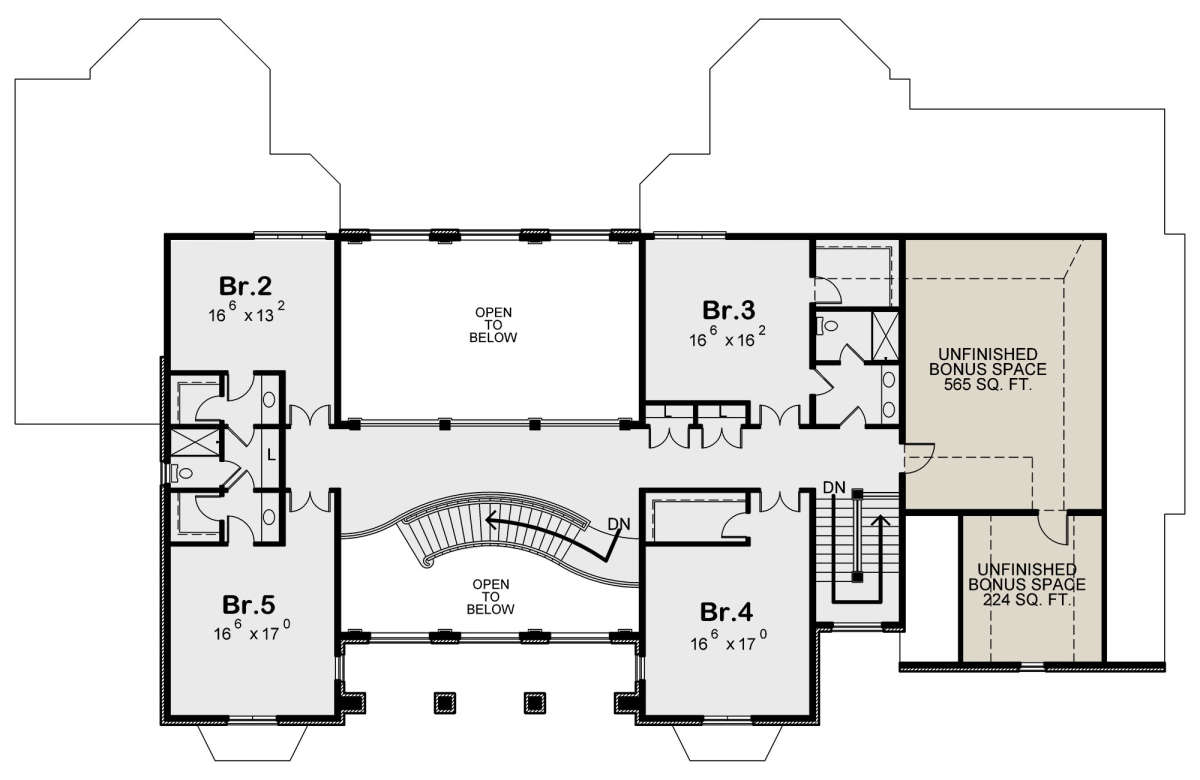
Проект двухэтажного дома с гаражом на три и более машин в современном стиле S5-656 (402-01587)
Характеристики дома:
Площадь дома
846 m2
Кол-во жилых комнат
6+
Индивидуальное проектирование
О проекте
Характеристики проекта S5-656 (402-01587)
| Классификация архитектора | 402-01587 |
| Общая площадь | 846 м2 |
| Количество этажей | двухэтажный |
| Гараж | 3 и более |
| Возможный материал кровли | металлочерепица, гибкая черепица, керамическая черепица, композитная черепица, цементно-песчаная черепица, фальцевая кровля |
| Количество жилых комнат | 6+ |
| Тип перекрытий | монолитное ж/б, плиты ПК |
| Материал стен | газобетон/пеноблоки, кирпич, керамические блоки, керамзитовые блоки, пеноблоки |