info@vfstroy.ru
Москва, 1-й Кожевнический переулок, дом 6, строение 1, этаж 3
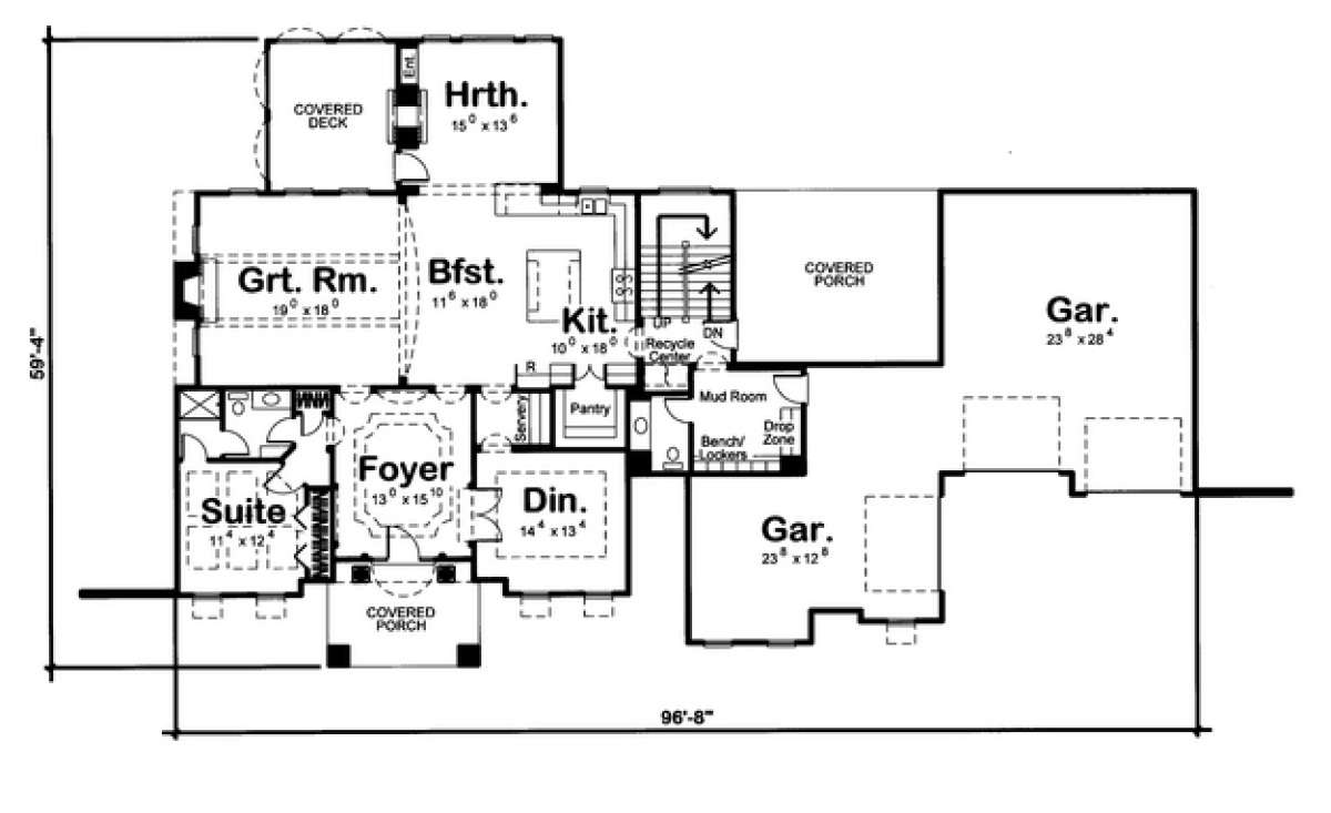
Проект двухэтажного дома с гаражом на три и более машин в стиле Ранчо S5-424 (963-00127)
Характеристики дома:
Площадь дома
532 m2
Кол-во жилых комнат
6+
Индивидуальное проектирование
О проекте
Характеристики проекта S5-424 (963-00127)
| Классификация архитектора | 963-00127 |
| Общая площадь | 532 м2 |
| Количество этажей | двухэтажный |
| Гараж | 3 и более |
| Возможный материал кровли | металлочерепица, гибкая черепица, керамическая черепица, композитная черепица, цементно-песчаная черепица, фальцевая кровля |
| Количество жилых комнат | 6+ |
| Тип перекрытий | монолитное ж/б, плиты ПК |
| Материал стен | газобетон/пеноблоки, кирпич, керамические блоки, керамзитовые блоки, пеноблоки |