info@vfstroy.ru
Москва, 1-й Кожевнический переулок, дом 6, строение 1, этаж 3
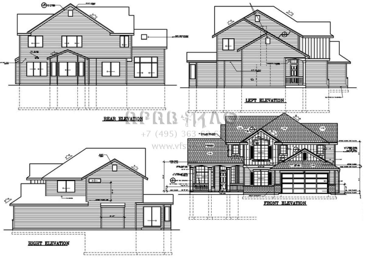
Проект двухэтажного дома с гаражом на две машины в стиле Ранчо S5-217 (692-00171)
Характеристики дома:
Площадь дома
263 m2
Кол-во жилых комнат
4
Индивидуальное проектирование
О проекте
Характеристики проекта S5-217 (692-00171)
| Классификация архитектора | 692-00171 |
| Общая площадь | 263 м2 |
| Количество этажей | двухэтажный |
| Гараж | 2 машины |
| Возможный материал кровли | металлочерепица, гибкая черепица, керамическая черепица, композитная черепица, цементно-песчаная черепица, фальцевая кровля |
| Количество жилых комнат | 4 |
| Тип перекрытий | монолитное ж/б, плиты ПК |
| Материал стен | газобетон/пеноблоки, кирпич, керамические блоки, керамзитовые блоки, пеноблоки |