info@vfstroy.ru
Москва, 1-й Кожевнический переулок, дом 6, строение 1, этаж 3
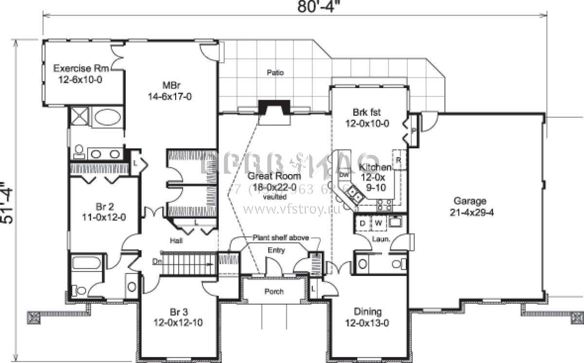
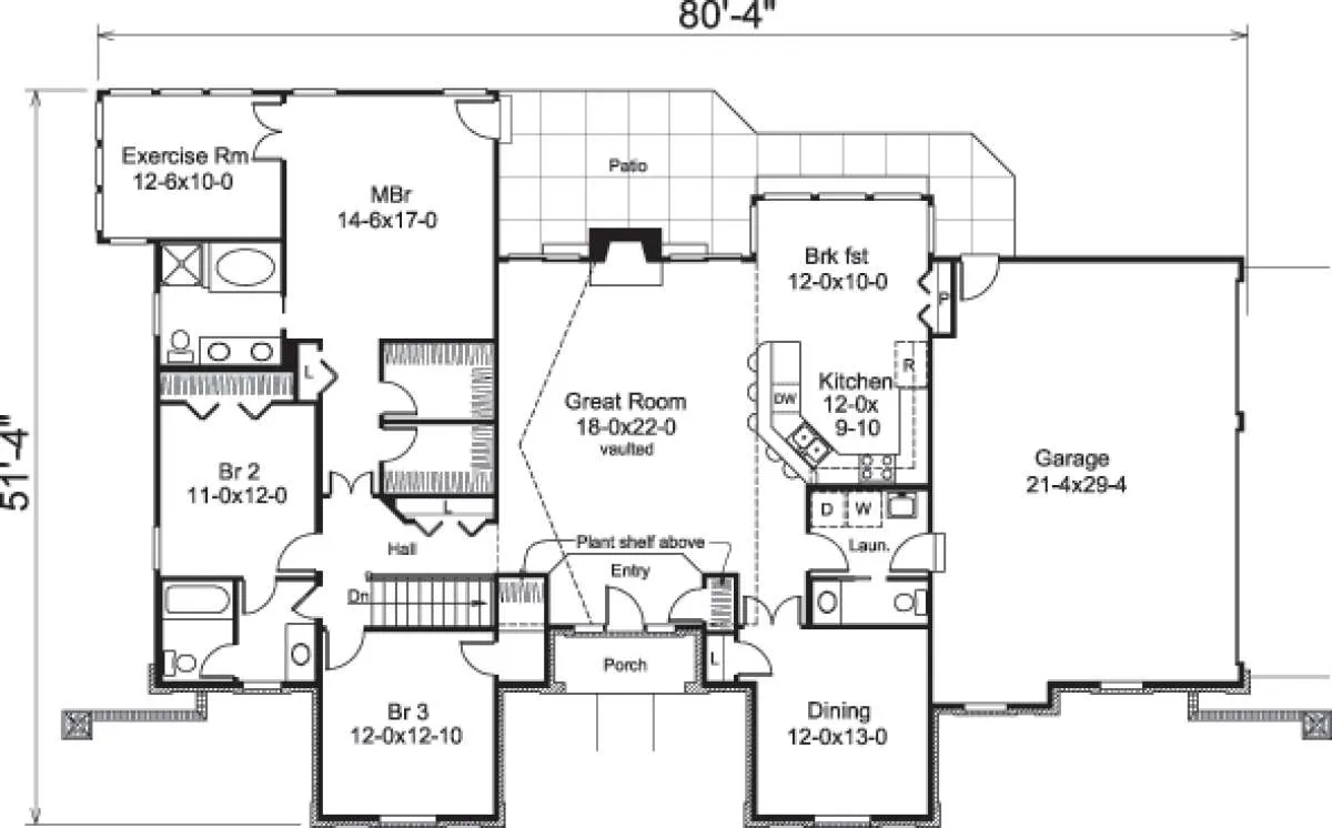
Проект одноэтажного дома с гаражом на три и более машин в стиле Ранчо S5-205 (5633-00172)
Характеристики дома:
Площадь дома
469 m2
Кол-во жилых комнат
4
Индивидуальное проектирование
О проекте
Характеристики проекта S5-205 (5633-00172)
| Классификация архитектора | 5633-00172 |
| Общая площадь | 469 м2 |
| Количество этажей | одноэтажный |
| Гараж | 3 и более |
| Возможный материал кровли | металлочерепица, гибкая черепица, керамическая черепица, композитная черепица, цементно-песчаная черепица, фальцевая кровля |
| Количество жилых комнат | 4 |
| Тип перекрытий | монолитное ж/б, плиты ПК |
| Материал стен | газобетон/пеноблоки, кирпич, керамические блоки, керамзитовые блоки, пеноблоки |