Проекты домов Оформить
ипотеку
Стройматериалы Участки Строительство
Выберите свой регион строительства
Крымский федеральный округ
Крым
Close mobile menu

Характеристики дома:

Площадь дома

174 m2

Кол-во жилых комнат

3
Индивидуальное проектирование

Хотите изменить планировку?

Отправьте запрос архитектору и обсудите с ним ваши идеи по перепланировке.

О проекте

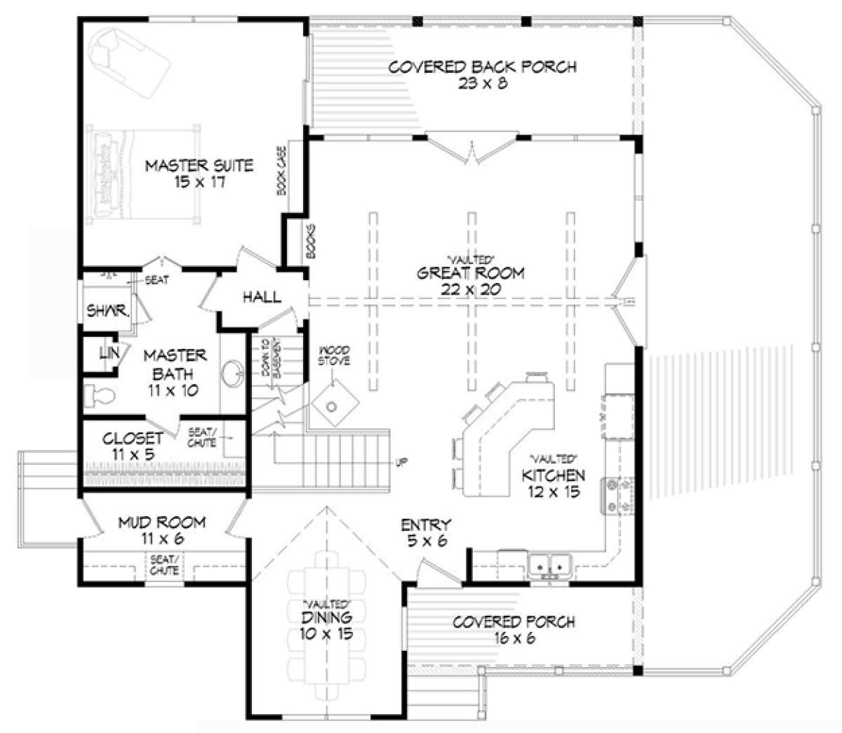
S5-174 (940-00015) Это иностранный проект, для которого требуется адаптация под нормы, действующие в Российской Федерации. Вы видите проект дома в стиле Шале. В этом доме сочетаются черты сельской постройки и аскетичность лофта. Внутри жильцы смогут проводить время с максимальным комфортом. Обратим внимание, что сейчас на планировках все размеры представлены в футах. Для перевода в метры вам необходимо значение в футах умножить на 0,3048.
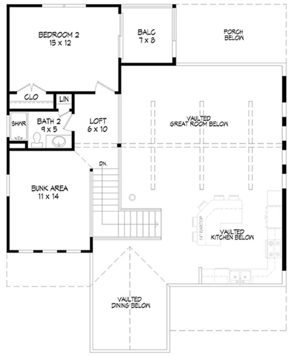
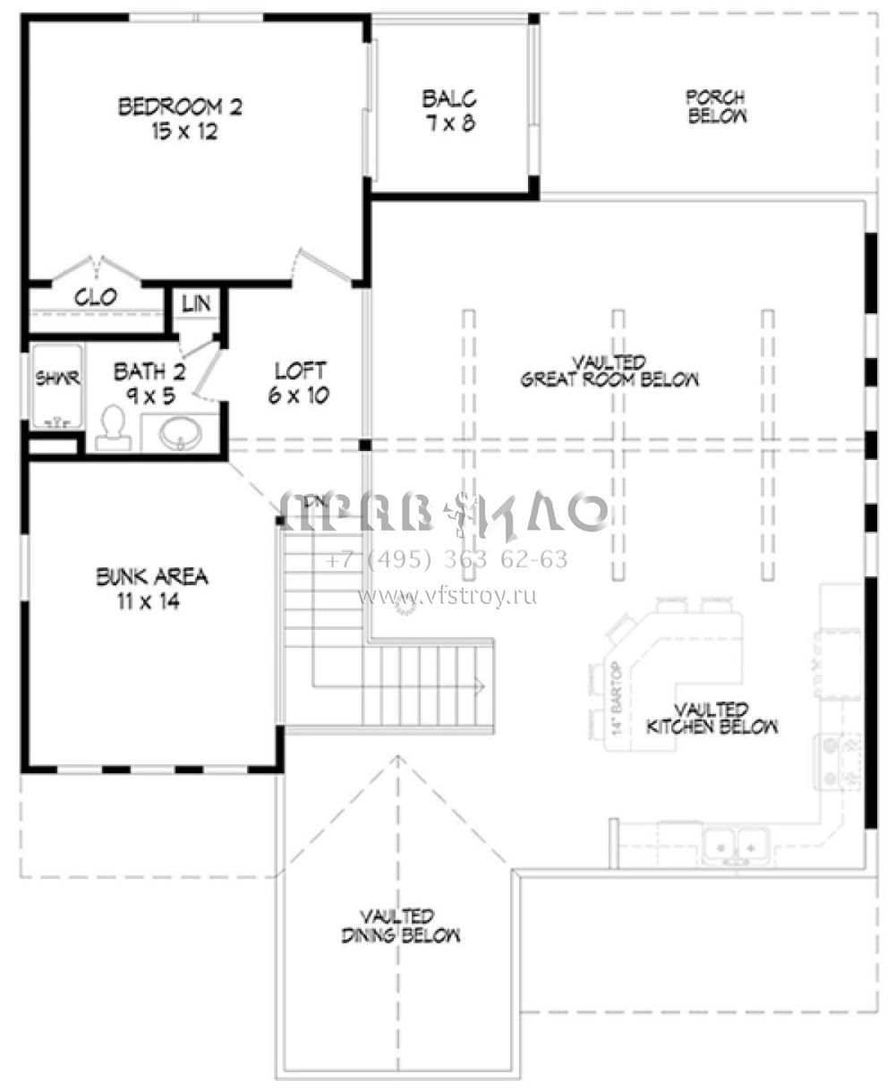
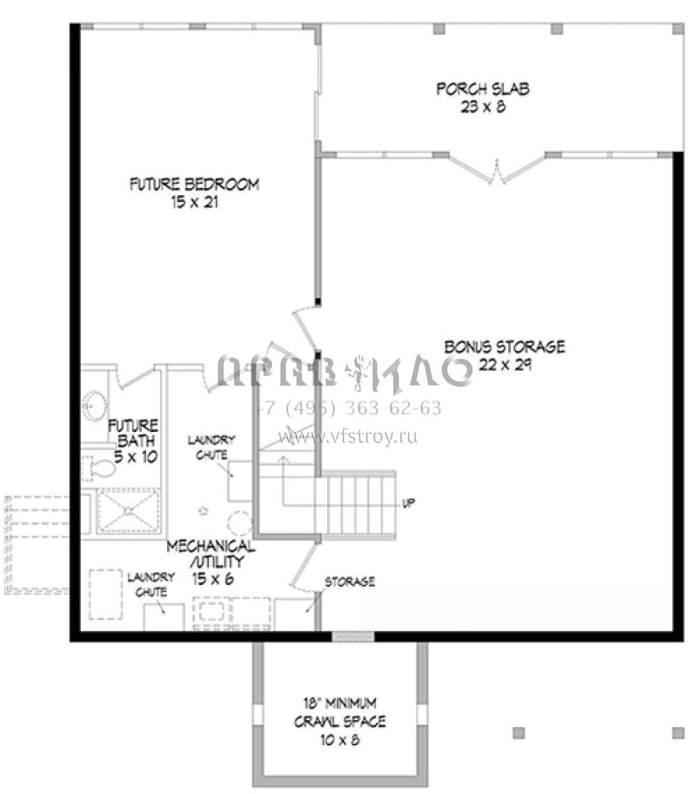
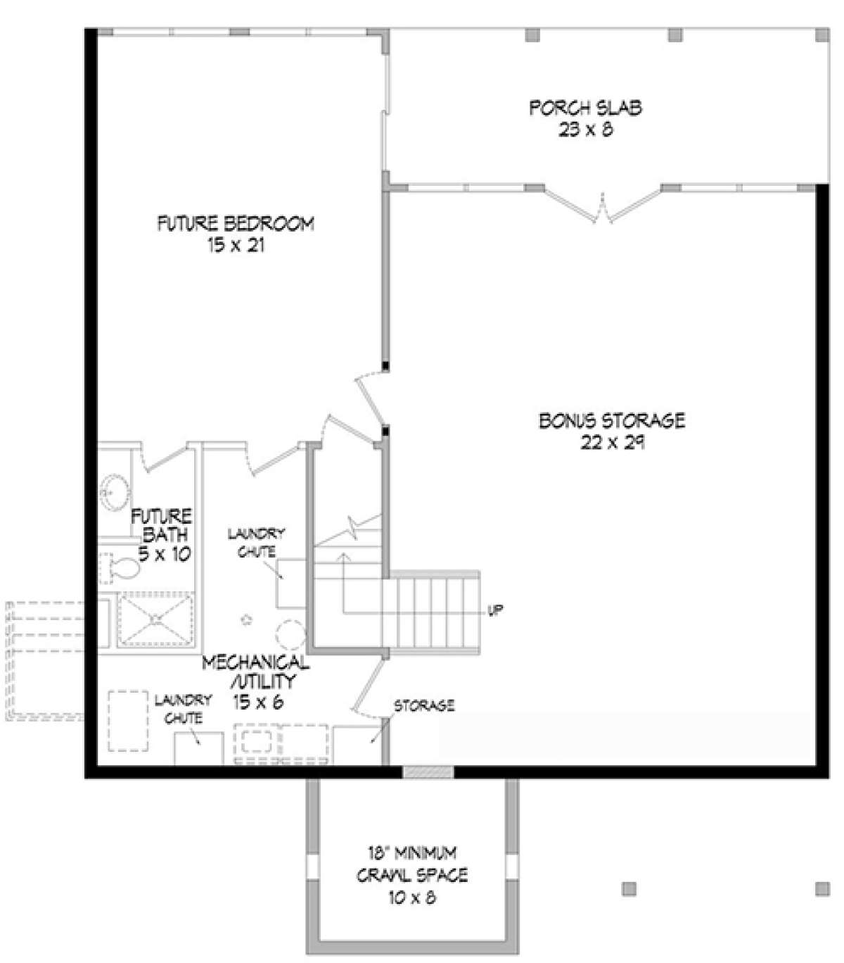
Это проект двухэтажного дома без гаража жилой площадью 174 кв.м. Длина дома 14.3 м, ширина 11.6 м, высота 7.6 м. В доме две спальни и два санузла.
Двухэтажный проект дома позволяет рационально распорядиться площадью участка небольшого размера или узкой формы. На первом этаже находятся общие комнаты (гостиная/столовая, кухня, подсобные и технические помещения), на втором — спальни членов семьи.
Поскольку этот проект разрабатывался иностранными архитекторами, для строительства дома требуется переработка проекта под действующие в России нормы. Данные визуализации проекта представлены для ознакомления с концепцией проекта. Проект разработан американским архитектурным бюро и представлен America's Best House Plans.

Дизайн интерьера

1/1

Понравился этот дом?

Отправьте нам сообщение, и мы ответим на все интересующие вас вопросы.

Аккредитованы в ведущих банках

Корзина
Ваша корзина пуста
Выберите в каталоге интересующий товар и нажмите кнопку "В корзину"
Отложенные товары
Отложенных товаров нет
Выберите в каталоге интересующий товар и нажмите кнопку "В избранное"
Заказать звонок