info@vfstroy.ru
Москва, 1-й Кожевнический переулок, дом 6, строение 1, этаж 3
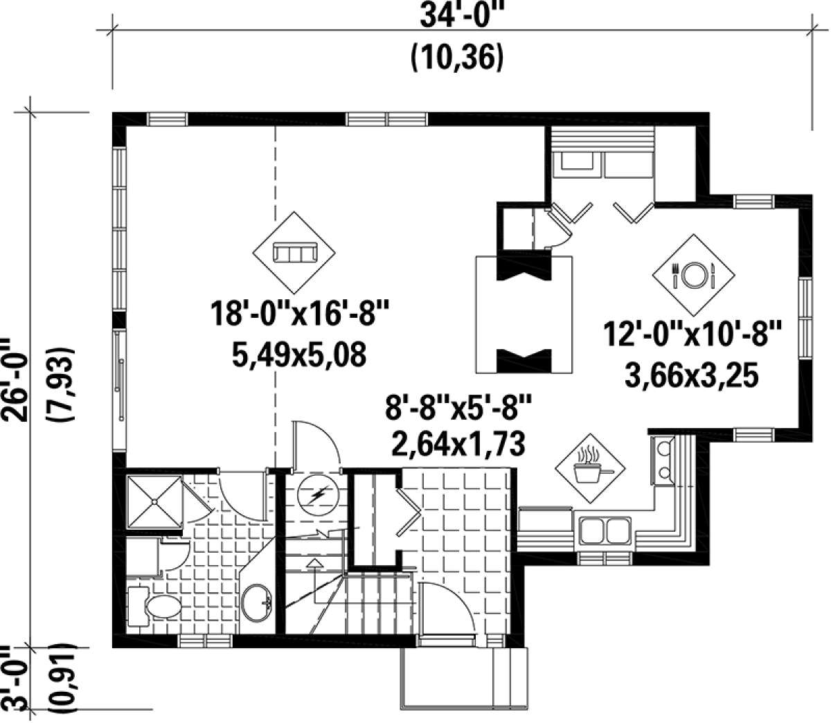
Проект двухэтажного дома без гаража в стиле Шале S5-101 (6146-00075)
Характеристики дома:
Площадь дома
101 m2
Кол-во жилых комнат
2
Индивидуальное проектирование
О проекте
Характеристики проекта S5-101 (6146-00075)
| Классификация архитектора | 6146-00075 |
| Общая площадь | 101 м2 |
| Количество этажей | двухэтажный |
| Гараж | без гаража |
| Возможный материал кровли | металлочерепица, гибкая черепица, керамическая черепица, композитная черепица, цементно-песчаная черепица, фальцевая кровля |
| Количество жилых комнат | 2 |
| Тип перекрытий | монолитное ж/б, плиты ПК |
| Материал стен | газобетон/пеноблоки, кирпич, керамические блоки, керамзитовые блоки, пеноблоки |