Проекты домов Оформить
ипотеку
Стройматериалы Участки Строительство
Выберите свой регион строительства
Крымский федеральный округ
Крым
Close mobile menu

Характеристики дома:

Площадь дома

246 m2

Кол-во жилых комнат

4
Стоимость проекта АР+КР
46,000 ₽

Хотите изменить планировку?

Отправьте запрос архитектору и обсудите с ним ваши идеи по перепланировке.

О проекте

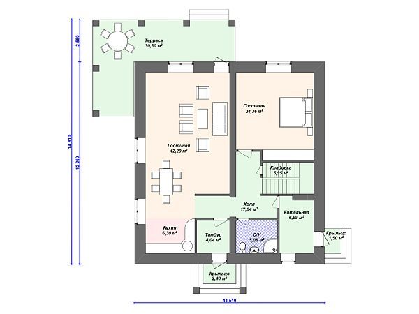
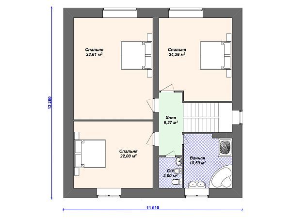
S4-246 (К-149) Дом выполнен из газобетона, толщиной 300 мм, с отделкой наружных стен - облицовочный кирпич. Вход в дом осуществляется с небольшого крылечка 2 кв м и проходим в тамбур. Через небольшой тамбур попадаем в достаточно просторный холл, из которого по правой стороне открываются входы в санузел, гостевую комнату, котельную и кладовую. Лестница на второй этаж расположена так же по правой стороне холла. Котельная рассчитана под отопление дома газовым оборудованием и имеет дополнительный вход с улицы. Левую половину дома занимает просторное помещение, в котором размещены гостиная 42 кв м и кухня 6 кв м. Откуда можно выйти на просторную г-образную террасу, площадь которой 30 кв м. На втором этаже расположены три комфортные по площади спальни - 22 кв м, 24 кв м и 33.6 кв м. Так же для удобства проживающих на этаже предусмотрен маленький с/у с раковиной и ванная комната. Проект с комфортными площадями будет удобен для круглогодичного проживания.

Аккредитованы в ведущих банках

Корзина
Ваша корзина пуста
Выберите в каталоге интересующий товар и нажмите кнопку "В корзину"
Отложенные товары
Отложенных товаров нет
Выберите в каталоге интересующий товар и нажмите кнопку "В избранное"
Заказать звонок