Проекты домов Оформить
ипотеку
Стройматериалы Участки Строительство
Выберите свой регион строительства
Крымский федеральный округ
Крым
Close mobile menu

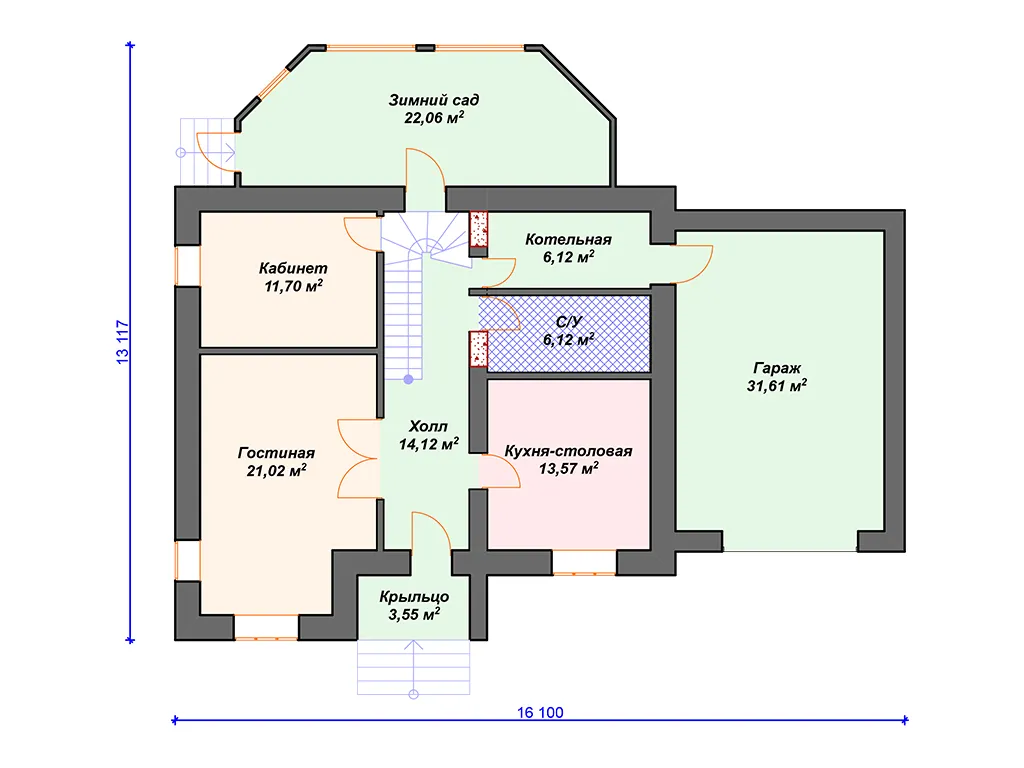
Характеристики дома:

Площадь дома

207 m2

Кол-во жилых комнат

4
Стоимость проекта АР+КР
43,900 ₽

Хотите изменить планировку?

Отправьте запрос архитектору и обсудите с ним ваши идеи по перепланировке.

О проекте

S4-207 (К-082) Проект двухэтажного дома с гаражом на 1 машину К-082. Общая площадь - 207 кв м Полезная площадь дома - 178 кв м. Жилая площадь - 85 кв м. Габариты дома (по краям) - 13.11х16.10 м. Дом выполнен из газобетонных блоков с облицовкой кирпичом. Строительство здания осуществляется на монолитной плите. Перекрытие 1 этажа - по плите, 2 этажа - ж/б плиты. Покрытие кровли - мягкая черепица. Дом с чердачным пространством, конструкция крыши - сложная. Главный фасад дома украшают фигурное оформление углов и окон, а крыльцо с гаражом придают дому некоторую легкость. Вход в дом осуществляется с главного фасада через крыльцо, попадаем в длинный холл, разделяющей лом на 2 половины: слева - жилый помещения - гостиная в 21 кв м и кабинет 11 кв м, который можно использовать в качестве гостевой комнаты; справа - кухня-столовая, санузел и котельная, рассчитанная на газовое оборудование. Через котельную осуществляется выход из дома в гараж. В конце холла размещена п-образная лестница. Удлиненный первый марш позволяет сделать вход под лестницей в кабинет и зимний сад, расположенный на задней дворе дома. Зимний сад можно использовать в качестве летней веранды. На 2 этаже размещены 3 большие спальни (самая маленькая - 15 кв м) и санузел. Дом подойдет для проживания семьи 4-5 человек.

Аккредитованы в ведущих банках

Корзина
Ваша корзина пуста
Выберите в каталоге интересующий товар и нажмите кнопку "В корзину"
Отложенные товары
Отложенных товаров нет
Выберите в каталоге интересующий товар и нажмите кнопку "В избранное"
Заказать звонок