Проекты домов Оформить
ипотеку
Стройматериалы Участки Строительство
Выберите свой регион строительства
Крымский федеральный округ
Крым
Close mobile menu

Характеристики дома:

Площадь дома

176 m2

Кол-во жилых комнат

3
Стоимость проекта АР+КР
43,000 ₽

Хотите изменить планировку?

Отправьте запрос архитектору и обсудите с ним ваши идеи по перепланировке.

О проекте

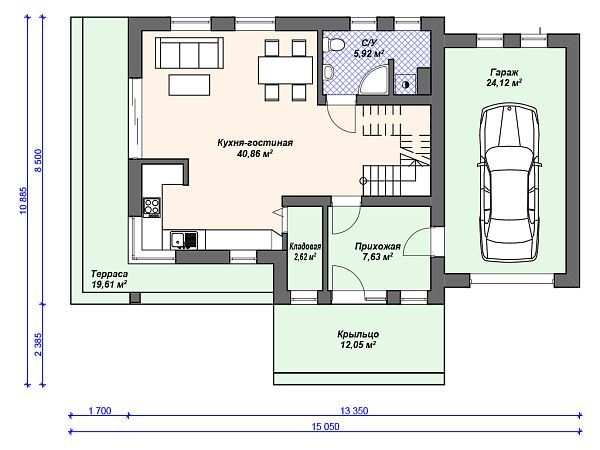
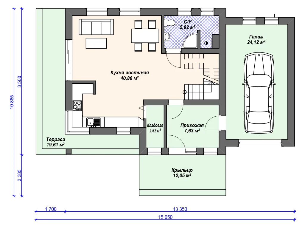
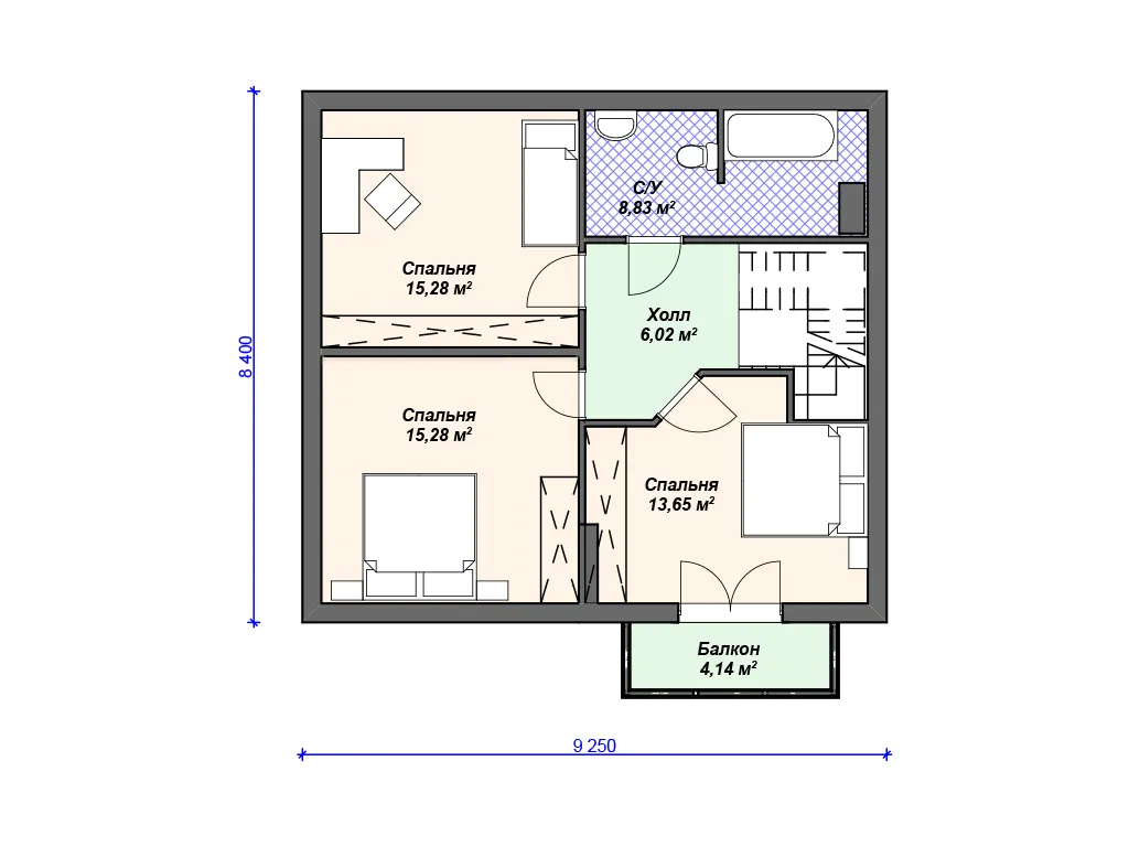
S4-176 (К-166) Дом прямоугольной формы из газобетона, толщиной 300 мм, отделка наружных стен - комбинированная. Входим в дом с крыльца и проходим в прихожую 7.6 кв м, из которой предусмотрен вход в гараж. Гараж расположен по правой стороне дома главного фасада. Площадь гаража 24 кв м. Из прихожей проходим сразу в зону гостиной совмещённой с кухней. Первый этаж - дневная зона, которую занимает полностью кухня-гостиная, площадью 40.8 кв м. Отсюда имеется доступ в с/у около 6 кв м. Лестница на второй этаж размещена так же в зоне гостиной. Поднимаемся на второй этаж и попадаем в холл 6 кв м, из которого ведут двери в три спальни - две 15 кв м и спальня 13.6 кв м с выходом на балкон. На этаже имеется санузел 8.8 кв м с ванной. Проект дома прекрасно подойдёт для постоянного проживания семьи из 4 человек.

Аккредитованы в ведущих банках

Корзина
Ваша корзина пуста
Выберите в каталоге интересующий товар и нажмите кнопку "В корзину"
Отложенные товары
Отложенных товаров нет
Выберите в каталоге интересующий товар и нажмите кнопку "В избранное"
Заказать звонок