Проекты домов Оформить
ипотеку
Стройматериалы Участки Строительство
Выберите свой регион строительства
Крымский федеральный округ
Крым
Close mobile menu

Характеристики дома:

Площадь дома

176 m2

Кол-во жилых комнат

3
Стоимость проекта АР+КР
43,800 ₽

Хотите изменить планировку?

Отправьте запрос архитектору и обсудите с ним ваши идеи по перепланировке.

О проекте

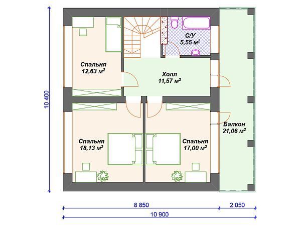
S4-176 (К-096) Дом квадратной формы, выполнен из газобетона, толщиной 300 мм, с отделкой наружных стен - облицовочный кирпич. Вход в дом осуществляется с террасы 21 кв м, расположенной во всю длину дома. Входим в холл 10 кв м, который является центром дома и из которого открываются двери во все помещения этажа. На первом этаже сформирована дневная зона - кухня-столовая 12.6 кв м, бойлерная около 6 кв м, маленький с/у 2 кв м с раковиной и просторная по площади гостиная 35 кв м. Второй этаж включает в себя три спальни 12.6 кв м, 17 кв м, 18 кв м и с/у с ванной 5.5 кв м с ванной. Из холла и спальни 17 кв м предусмотрен выход на балкон. Балкон предусмотрен прямо над террасой, вместе с которой создаёт единый архитектурный ансамбль главного фасада. Очень хороший проект, сочетающий в себе и оригинальную архитектуру, и оптимальную комфортную планировку. Будет удобен для круглогодичного проживания семьи из 4 человек.

Аккредитованы в ведущих банках

Корзина
Ваша корзина пуста
Выберите в каталоге интересующий товар и нажмите кнопку "В корзину"
Отложенные товары
Отложенных товаров нет
Выберите в каталоге интересующий товар и нажмите кнопку "В избранное"
Заказать звонок