Проекты домов Оформить
ипотеку
Стройматериалы Участки Строительство
Выберите свой регион строительства
Крымский федеральный округ
Крым
Close mobile menu

Характеристики дома:

Площадь дома

172 m2

Кол-во жилых комнат

4
Стоимость проекта АР+КР
44,500 ₽

Хотите изменить планировку?

Отправьте запрос архитектору и обсудите с ним ваши идеи по перепланировке.

О проекте

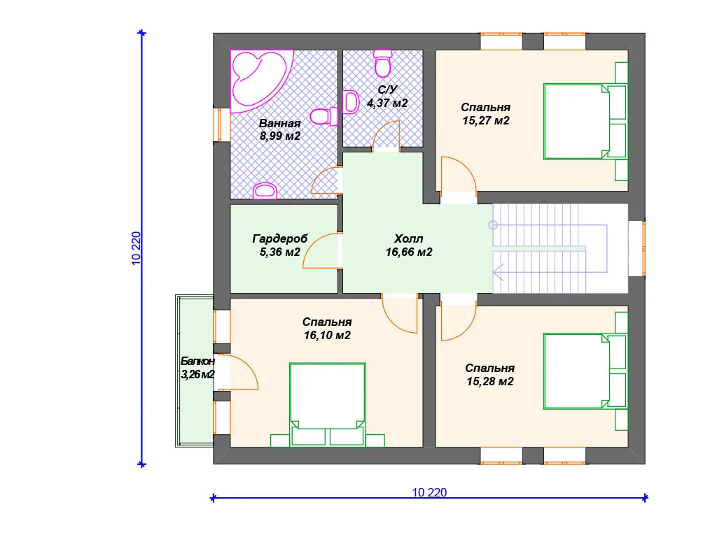
S4-172  (К-222) Общая площадь дома - 172 кв м. Габариты дома (по краям) - 10.22х10.22 м. Двухэтажный мансардный дом квадратной формы из газобетонных блоков, толщиной 400 мм, с облицовкой штукатурка + декоративная плитка. Конструкция крыши у дома - сложная. Строительство здания осуществляется на фундаменте - монолитная плита. Перекрытие 1 этажа - по плите, 2 этажа - монолитное. Покрытие кровли - металлочерепица. Вход в дом осуществляется с небольшого крыльца, накрытого односкатной крышей. Заходим в дом и попадаем в тамбур, из которого есть вход в котельную, предназначенную для газового оборудования. Далее проходим в просторный холл 17 кв м. Сразу по левую руку расположен с/у 4 кв м и по этой же стороне через перегородку зона кухни-столовой 15 кв м. В конце холла - лестница на второй этаж, под которой размещена небольшая кладовая, которая будет по достоинству оценена хозяйкой дома. С правой стороны холла расположены гостевая комната, которую можно использовать как кабинет и гостиная 15 кв м. Расположение больших окон в гостиной, делают её более светлой. На второй этаж поднимаемся по комфортной п-образной лестнице с площадкой. За счёт большого панорамного окна, которое размещено с середины первого этажа и до крыши, с утра и до позднего вечера лестница освещена дневным светом. Второй этаж полностью отдан под ночную зону. Здесь располагаются три просторные спальни. В одной из них имеется выход на балкон. На этаже также размещены гардеробная и раздельные ванная и с/у. Загородный дом подойдёт для постоянного проживания семьи из 4-5 человек.

Аккредитованы в ведущих банках

Корзина
Ваша корзина пуста
Выберите в каталоге интересующий товар и нажмите кнопку "В корзину"
Отложенные товары
Отложенных товаров нет
Выберите в каталоге интересующий товар и нажмите кнопку "В избранное"
Заказать звонок