Проекты домов Оформить
ипотеку
Стройматериалы Участки Строительство
Выберите свой регион строительства
Крымский федеральный округ
Крым
Close mobile menu

Характеристики дома:

Площадь дома

164 m2

Кол-во жилых комнат

3
Стоимость проекта АР+КР
44,000 ₽

Хотите изменить планировку?

Отправьте запрос архитектору и обсудите с ним ваши идеи по перепланировке.

О проекте

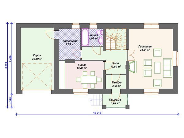
S4-164 (К-109) Дом прямоугольной формы, выполнен из газобетона, толщиной 300 мм, с отделкой наружных стен - облицовочный кирпич. Входим в дом с крыльца накрытого односкатной крышей и попадаем в тамбур. Площадь тамбура небольшая 3,6 кв м, поэтому здесь можно разместить только вешалки для верхней одежды. Первый этаж используется в качестве дневной зоны: просторная, уютная и светлая гостиная с камином площадью почти 29 кв м, кухня 13 кв м, ванная комната 4 кв м и котельная около 8 кв м. Слева от основного входа размещается гараж для одного автомобиля. Из гаража можно пройти в дом через котельную. Спальная зона по традиции расположена сверху. Три изолированные комнаты: две равноценные по площади 14 кв м и 15 кв м. На этаже имеется ванная комната 13 кв м. Отличный проект с удобной планировкой для круглогодичного проживания семьи из 4 человек.

Аккредитованы в ведущих банках

Корзина
Ваша корзина пуста
Выберите в каталоге интересующий товар и нажмите кнопку "В корзину"
Отложенные товары
Отложенных товаров нет
Выберите в каталоге интересующий товар и нажмите кнопку "В избранное"
Заказать звонок