Проекты домов Оформить
ипотеку
Стройматериалы Участки Строительство
Выберите свой регион строительства
Крымский федеральный округ
Крым
Close mobile menu

Характеристики дома:

Площадь дома

152 m2

Кол-во жилых комнат

4
Стоимость проекта АР+КР
44,000 ₽

Хотите изменить планировку?

Отправьте запрос архитектору и обсудите с ним ваши идеи по перепланировке.

О проекте

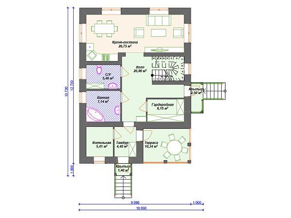
S4-152 (К-262) Дом общей площадью 152 кв м. Габариты дома (без крыльца)- 9.09х12.73 м. Дом прямоугольной, выполнен из газобетона, с облицовкой наружных стен облицовочным кирпичом. Строительство здания осуществляется на свайно-ростверковом фундаменте. Перекрытия 1 и 2 эт -ж/б плиты. Покрытие кровли - металлочерепица. Дом двухэтажный, с полноценным 2 этажом, накрыт четырёхскатной крышей (вальмовая). Вход в дом осуществляется с маленького крыльца и проходим в тамбур 4 кв м, из которого можно пройти в котельную 5 кв м и крытую террасу 10 кв м. Далее проходим в просторный холл 20.8 кв м. Сразу при входе с права гардеробная, по левую руку ванная комната 7 кв м и с/у 5 кв м с раковиной. Проходя через холл рядом с гардеробной, предусмотрен выход на приусадебный участок. В конце холла расположена кухня-гостиная 26.7 кв м. На второй этаж поднимаемся по лестнице с забежными ступенями и попадаем в холл 5 кв м. На этаже три спальни (25.9 кв м и две по 12 кв м, а так же с/у 5 кв м с душевой кабиной. Загородный дом с полноценным вторым этажом удобен для круглогодичного проживания семьи из 4-5 человек.

Аккредитованы в ведущих банках

Корзина
Ваша корзина пуста
Выберите в каталоге интересующий товар и нажмите кнопку "В корзину"
Отложенные товары
Отложенных товаров нет
Выберите в каталоге интересующий товар и нажмите кнопку "В избранное"
Заказать звонок